Жилой Дом S&R002
F2 Project

F2 Project

Дизайнеры интерьера

0

Жилой Дом S&R002

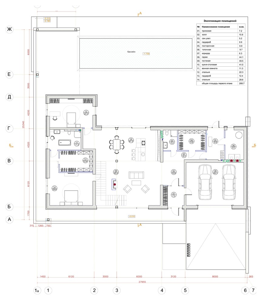
Проект индивидуального двухэтажного жилого дома в г. Саратов. Общая площадь 374.3 кв.м. . Проект разработан в современном стиле, с применением передовых материалов и методов строительства. . В концепцию дома заложена идея открытого пространства. . На первом этаже располагаются общественные и технические функции дома, на втором - спальни и зимний сад. С каждого этажа есть выход на крышу с открытыми террассами, которые открывают потрясающий вид на реку Волгу. .

Другие фотографии в проекте

Вопросы к фото 0

Задайте вопрос

Вам ответят эксперты. Пришлем уведомление, когда вам ответят