Другие фотографии в проекте Жилой дом "КУБ"
Вам ответят эксперты. Пришлем уведомление, когда вам ответят
$$, 2, Белый, Двухэтажный дом, Дома, Контемпорари, Краснодар, Металлическая кровля, Односкатная крыша, Средний, Частный дом, Штукатурка, белый жилой дом, двухэтажный жилой дом, жилой дом, проект дома, проект экстерьера, современный дом, современный жилой дом, современный фасад, фасад, фасады дома, частный дом, экстерьер жилого дома
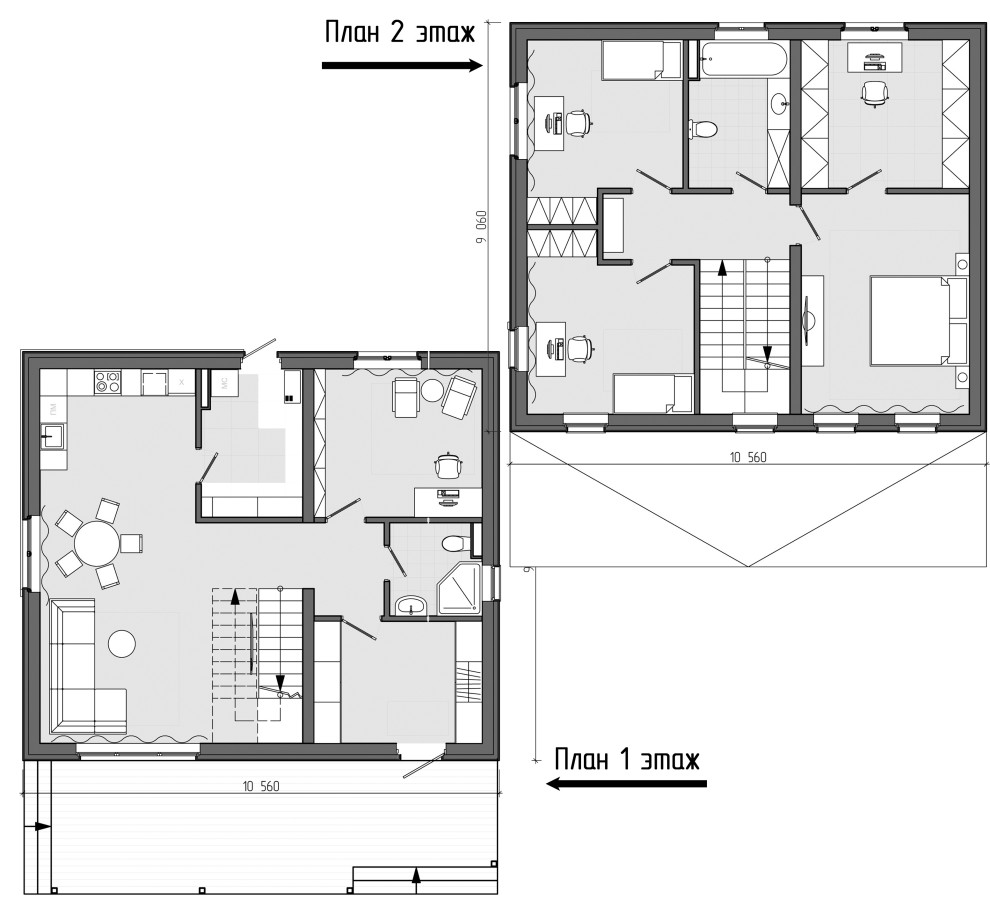
Общая площадь 140 кв.м. . Конечно, начинали мы с крутейших референсов. Чего в аналогах только не было: второй свет, балконы, консоли, выступы, огромные панорамные окна, в том числе выходящие на угол здания. Да и площади в примерах доходили до 400 кв.м. . ?Но при обсуждении бюджета и деталей процесса, мы пришли к более скромной и компактной модели. При этом здание индивидуальное и очень выделяется на фоне окружающей застройки. . ?И здесь следует дать совет всем желающим построить себе дом: эксперементируйте с формами и сметами! . ?Это здание — наглядный пример того, как построить дом со стандартным и даже невысоким бюджетом, о котором мы еще скажем подробнее, но при этом сделать здание фасады стильными и выразительными. . ?По планировке: спальные помещения размещены на втором этаже. Тут у нас две детские, спальня с гардеробной, просторная ванная комната. . ?На первом этаже основные «общие» помещения: гостиная-кухня-столовая, котельная-кладовая, кабинет, небольшое санузел и прихожая. . ?Во время работы над проектом мы понимали, что каждый выступ стены — это дополнительные деньги. Поэтому решили сформировать «КУБ». Чистая форма, очень архитектурная и лаконичная. Ничего лишнего. . В планировании работали по принципу «изнутри-наружу». Мы вообще во всех проектах работаем сразу с интерьером, узнаем все пожелания заказчиков по функционалу и мебели, и начинаем скурпулезно прорабатывать каждое помещение. В результате планы получаются эргономичными, без «гуляющих» площадей?.

Загородный дом с мансардой
Идея дизайна: двухэтажный, белый частный загородный дом среднего размера в современном стиле с облицовкой из цементной штукатурки, двускатной крышей, металлической крышей и серой крышей
OLYA

Дом для молодой семьи
На фото: двухэтажный, белый частный загородный дом среднего размера в современном стиле с облицовкой из цементной штукатурки, металлической крышей, серой крышей и крышей-бабочкой
Кирилл Храбрых

Проект дома 220 квм
На фото: трехэтажный, белый частный загородный дом среднего размера в современном стиле с облицовкой из цементной штукатурки, двускатной крышей, металлической крышей, серой крышей и отделкой планкеном
Ольга Володина

Проект дома 220 квм
Свежая идея для дизайна: трехэтажный, белый частный загородный дом среднего размера в современном стиле с облицовкой из цементной штукатурки, двускатной крышей, металлической крышей, серой крышей и отделкой планкеном - отличное фото интерьера
Ольга Володина

Дом для молодой семьи
На фото: одноэтажный, белый частный загородный дом среднего размера в современном стиле с облицовкой из цементной штукатурки, металлической крышей, серой крышей и крышей-бабочкой
Кирилл Храбрых

Дом для молодой семьи
На фото: одноэтажный, белый частный загородный дом среднего размера в современном стиле с облицовкой из цементной штукатурки, металлической крышей, серой крышей и крышей-бабочкой с
Кирилл Храбрых

Загородный дом с остекленной терассой и гаражом.
Стильный дизайн: двухэтажный, белый частный загородный дом среднего размера в современном стиле с облицовкой из цементной штукатурки, двускатной крышей и металлической крышей - последний тренд
Кирилл Храбрых

Дом в Узигонтах
На фото: двухэтажный, белый частный загородный дом среднего размера в современном стиле с облицовкой из цементной штукатурки, вальмовой крышей и крышей из гибкой черепицы с
Андрей Лебедев

Дом в Алабушево
На фото: двухэтажный, деревянный, черный частный загородный дом среднего размера в современном стиле с односкатной крышей и металлической крышей с
Архитектурное бюро ДИЗАЙНУС

Современная роскошь
На фото: двухэтажный, белый частный загородный дом среднего размера в современном стиле с облицовкой из цементной штукатурки, двускатной крышей и металлической крышей с
Светлана Тихонова

Проект дома с мансардой 11х15 м S159м2 F-15164
Ерванд Григорян

Проект одноэтажного дома 11х12м S83м2 F-154076ччя
Ерванд Григорян

Проект одноэтажного дома 13х22м S180м2 F-16370
Ерванд Григорян

Проект двухэтажного дома 9х14 м S141м2 F-17036
Ерванд Григорян

Проект одноэтажного дома 10х18м S149м2 F-17909
Ерванд Григорян

Пасхальный дом
На фото: двухэтажный, белый таунхаус среднего размера в современном стиле с облицовкой из цементной штукатурки, плоской крышей, крышей из смешанных материалов и черной крышей с
Карпенко Владимир

Пасхальный дом
Свежая идея для дизайна: двухэтажный, белый таунхаус среднего размера в современном стиле с облицовкой из цементной штукатурки, плоской крышей, крышей из смешанных материалов и черной крышей - отличное фото интерьера
Карпенко Владимир

Пасхальный дом
Стильный дизайн: двухэтажный, белый таунхаус среднего размера в современном стиле с облицовкой из цементной штукатурки, плоской крышей, крышей из смешанных материалов и черной крышей - последний тренд
Карпенко Владимир

Пасхальный дом
Пример оригинального дизайна: двухэтажный, белый таунхаус среднего размера в современном стиле с облицовкой из цементной штукатурки, плоской крышей, крышей из смешанных материалов и черной крышей
Карпенко Владимир

Пасхальный дом
На фото: двухэтажный, белый таунхаус среднего размера в современном стиле с облицовкой из цементной штукатурки, плоской крышей, крышей из смешанных материалов и черной крышей с
Карпенко Владимир

Пасхальный дом
На фото: двухэтажный, белый таунхаус среднего размера в современном стиле с облицовкой из цементной штукатурки, плоской крышей, крышей из смешанных материалов и черной крышей
Карпенко Владимир

Пасхальный дом
Источник вдохновения для домашнего уюта: двухэтажный, белый таунхаус среднего размера в современном стиле с облицовкой из цементной штукатурки, плоской крышей, крышей из смешанных материалов и черной крышей
Карпенко Владимир

Строгая лазурь
Свежая идея для дизайна: двухэтажный, серый частный загородный дом среднего размера в стиле неоклассика (современная классика) с облицовкой из цементной штукатурки, мансардной крышей, металлической крышей и серой крышей - отличное фото интерьера
Сергей и Елена Димаковы

Дом для молодой семьи
Свежая идея для дизайна: одноэтажный частный загородный дом среднего размера в современном стиле с облицовкой из цементной штукатурки, металлической крышей, серой крышей и крышей-бабочкой - отличное фото интерьера
Кирилл Храбрых

Фиброцементный сайдинг Cedral
На фото: двухэтажный, бежевый частный загородный дом среднего размера в современном стиле с комбинированной облицовкой, двускатной крышей и металлической крышей с
Александр Сотдел

Private house 320 m²
Идея дизайна: двухэтажный, белый частный загородный дом среднего размера в современном стиле с комбинированной облицовкой и плоской крышей
Morskoy Architect

Private house 425 m²
Стильный дизайн: двухэтажный, белый частный загородный дом среднего размера в современном стиле с облицовкой из бетона и плоской крышей - последний тренд
Morskoy Architect

Шорт-лист премии АРХИWOOD за лучшее архитектурное сооружение из дерева, 2015
Источник вдохновения для домашнего уюта: одноэтажный, деревянный, коричневый частный загородный дом среднего размера в современном стиле с односкатной крышей и металлической крышей
Владимир Юзбашев

Проект дома с мансардой 11х7 м S53м2 F-14642
Ерванд Григорян

Проект дома с мансардой 8х8 м S83м2 F-15668
Ерванд Григорян

Проект одноэтажного дома 18х18м S233м2 F-15902
Ерванд Григорян

Проект двухэтажного дома 11х9 м S135м2 F-16433
Ерванд Григорян

Проект одноэтажного дома 16х13м S145м2 F-16424
Ерванд Григорян

Проект двухэтажного дома 16х24 м S333м2 F-16658
Ерванд Григорян

Проект одноэтажного дома 15х19м S196м2 F-16964
Ерванд Григорян

Проект одноэтажного дома 33х21м S708м2 F-17162
Ерванд Григорян

Проект двухэтажного дома 13х9 м S136м2 F-17018
Ерванд Григорян

Проект дома с мансардой 21х24 м S297м2 F-17144
Ерванд Григорян

Проект дома с мансардой 8х8 м S80м2 F-17477
Ерванд Григорян

Проект дома с мансардой 13х10 м S138м2 F-17324
Ерванд Григорян

Проект двухэтажного дома 13х12 м S154м2 F-17414
Ерванд Григорян

Проект одноэтажного дома 14х12м S113м2 F-17819
Ерванд Григорян

Проект дома с мансардой 10х10 м S128м2 F-18098
Ерванд Григорян

Проект дома с мансардой 12х17 м S216м2 F-17945
Ерванд Григорян

Вечерний вид
Идея дизайна: двухэтажный, белый частный загородный дом среднего размера в современном стиле с комбинированной облицовкой, плоской крышей и крышей из смешанных материалов
Архитектурная студия Нулевая Отметка

Главный фасад
Источник вдохновения для домашнего уюта: двухэтажный, белый частный загородный дом среднего размера в современном стиле с комбинированной облицовкой, плоской крышей и крышей из смешанных материалов
Архитектурная студия Нулевая Отметка

Under the wing
Источник вдохновения для домашнего уюта: маленький, одноэтажный, белый частный загородный дом в современном стиле с облицовкой из цементной штукатурки, плоской крышей, крышей из гибкой черепицы, серой крышей и отделкой планкеном для на участке и в саду
Павел Денисов

КП Кокошкино.КРУ-2
Свежая идея для дизайна: двухэтажный, кирпичный, коричневый частный загородный дом среднего размера в современном стиле с двускатной крышей, черепичной крышей и коричневой крышей - отличное фото интерьера
Наталья Круц

Современный дом с бассейном
Свежая идея для дизайна: двухэтажный, кирпичный дом среднего размера в современном стиле с плоской крышей - отличное фото интерьера
Юлия Тараева

Red bathhouse
Свежая идея для дизайна: двухэтажный, красный частный загородный дом среднего размера в современном стиле с комбинированной облицовкой, двускатной крышей, черепичной крышей и серой крышей - отличное фото интерьера
Павел Денисов