
Дизайнеры интерьера
0
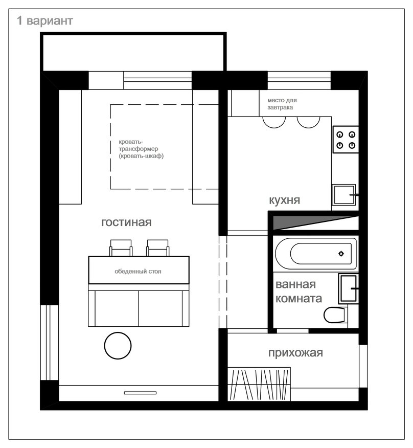
Законные перепланировки типовых квартир
Руслан Кирничанский
Другие фотографии в проекте
Вопросы к фото 0
Задайте вопрос
Вам ответят эксперты. Пришлем уведомление, когда вам ответят

Дизайнеры интерьера
0
Руслан Кирничанский
Другие фотографии в проекте
Вам ответят эксперты. Пришлем уведомление, когда вам ответят