
Архитекторы
0
"Вкус мёда"
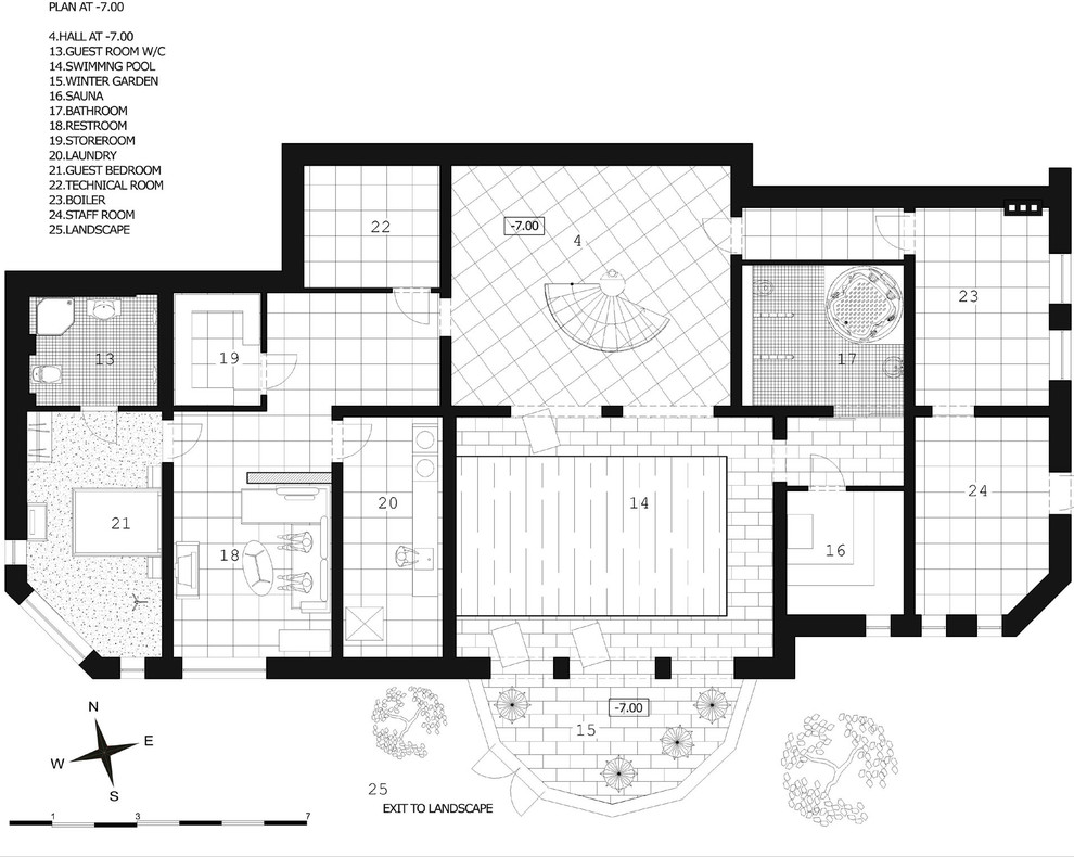
План первого этажа– спа зона с бассейном и гостевой, здесь также есть выход к прилегающему ландшафту.
Другие фотографии в проекте
Вопросы к фото 0
Задайте вопрос
Вам ответят эксперты. Пришлем уведомление, когда вам ответят

Архитекторы
0
План первого этажа– спа зона с бассейном и гостевой, здесь также есть выход к прилегающему ландшафту.
Другие фотографии в проекте
Вам ответят эксперты. Пришлем уведомление, когда вам ответят