
Архитекторы
5
·
10 отзывов
ТРОГАТЕЛЬНЫЙ ДОМ С БРУТАЛЬНЫМ ХАРАКТЕРОМ
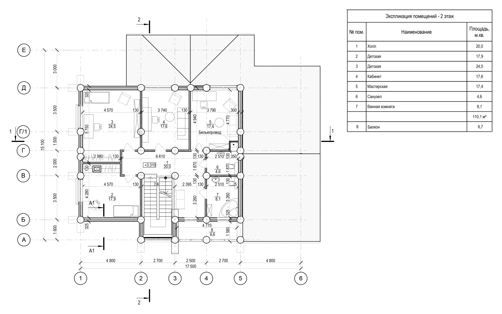
Главная идея загородного дома была в том, чтобы придать данной технологии современное прочтение и не утерять атмосферность и трогательность, которую дает натуральное бревно. . Дом расположен в лесу и необходимо было передать все требуемые заказчиком ощущения и от внешнего восприятия и от внутреннего функционального наполнения. . Брутальный вид конструкций и густой лес внушают ощущение защищенности и позволяют расслабиться после городского напряжения. . Деревянные бревенчатые колонны и балки межэтажного перекрытия – активный элемент интерьера. Большие окна и витражи открывают вид на чудесный лес. . Дом трехэтажный, в т.ч. цоколь. Второй этаж – мансардный. Технология строительства этого дома была продиктована заказчиком. Каркасная технология Post & Beam – ручное выполнение всех соединений и для создания архитектуры требует определенных знаний узлов и технологии монтажа в целом. . Имея достаточно сложный рельеф на участке, необходимо было эргономично вписать все строения усадьбы, в том числе дом, обеспечив комфортную пешеходную связь и доступность между ними. . Фасад облицован по системе вентфасада фиброцементными панелями с эффектом штукатурки и крашенной фасадной доской «планкен». . . . . .
Другие фотографии в проекте
Вопросы к фото 0
Задайте вопрос
Вам ответят эксперты. Пришлем уведомление, когда вам ответят




