Трогательный дом с брутальным характером

Другие фотографии в проекте ТРОГАТЕЛЬНЫЙ ДОМ С БРУТАЛЬНЫМ ХАРАКТЕРОМ

Вопросы к фото 0

Задайте вопрос

Вам ответят эксперты. Пришлем уведомление, когда вам ответят

Иркутск, Фасад дома, Фасады, Фермерский дом, большой, бревно, витражи, деревянный каркас, каркасный, красивый, крыльцо, лес, мансардный, планировки, пост енд бим, современный, стильный, стоечно-балочная система, терраса, трехэтажный, уклон, цоколь

Анна Ушарова

Анна Ушарова

Архитекторы

Смотреть профиль

17

отзывов

5

Рейтинг

ТРОГАТЕЛЬНЫЙ ДОМ С БРУТАЛЬНЫМ ХАРАКТЕРОМ

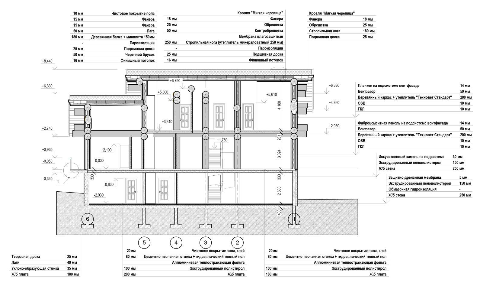
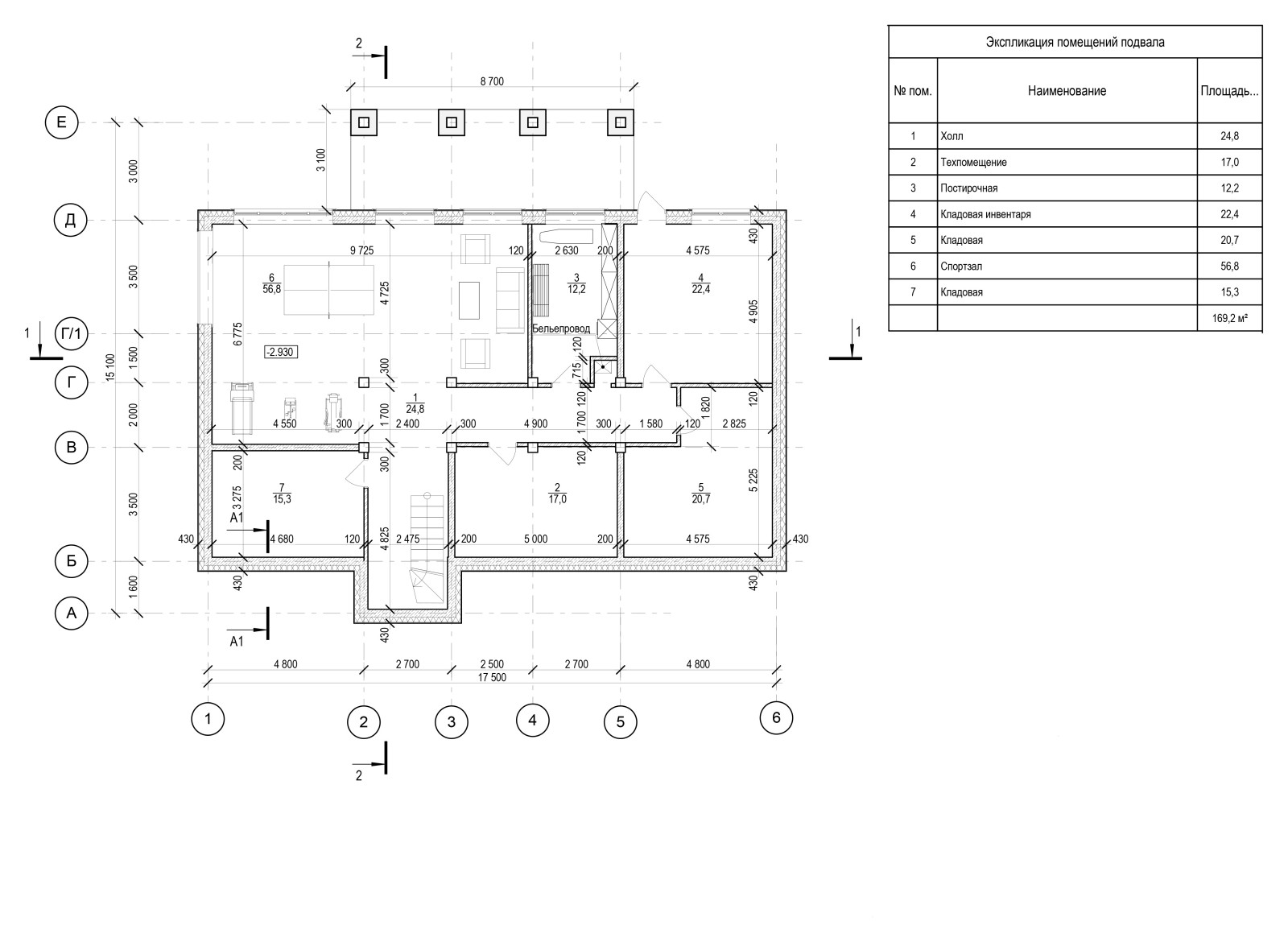
Главная идея загородного дома была в том, чтобы придать данной технологии современное прочтение и не утерять атмосферность и трогательность, которую дает натуральное бревно. . Дом расположен в лесу и необходимо было передать все требуемые заказчиком ощущения и от внешнего восприятия и от внутреннего функционального наполнения. . Брутальный вид конструкций и густой лес внушают ощущение защищенности и позволяют расслабиться после городского напряжения. . Деревянные бревенчатые колонны и балки межэтажного перекрытия – активный элемент интерьера. Большие окна и витражи открывают вид на чудесный лес. . Дом трехэтажный, в т.ч. цоколь. Второй этаж – мансардный. Технология строительства этого дома была продиктована заказчиком. Каркасная технология Post & Beam – ручное выполнение всех соединений и для создания архитектуры требует определенных знаний узлов и технологии монтажа в целом. . Имея достаточно сложный рельеф на участке, необходимо было эргономично вписать все строения усадьбы, в том числе дом, обеспечив комфортную пешеходную связь и доступность между ними. . Фасад облицован по системе вентфасада фиброцементными панелями с эффектом штукатурки и крашенной фасадной доской «планкен». . . . . .

Вопросы к фото 0