
Дизайнеры интерьера
5
·
5 отзывов
Структура и свет
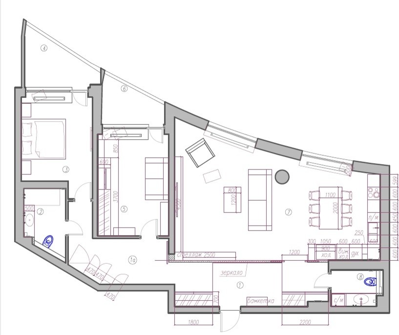
Двухкомнатная квартира для мужчины - холостяка площадью 129 кв.м. Интерьер решен крупными формами и геометричными элементами. К этому располагает конструктив квартиры: большая площадь и высокие окна, насыщающие пространство светом.
Другие фотографии в проекте
Вопросы к фото 0
Задайте вопрос
Вам ответят эксперты. Пришлем уведомление, когда вам ответят




