
Проектирование и строительство
0
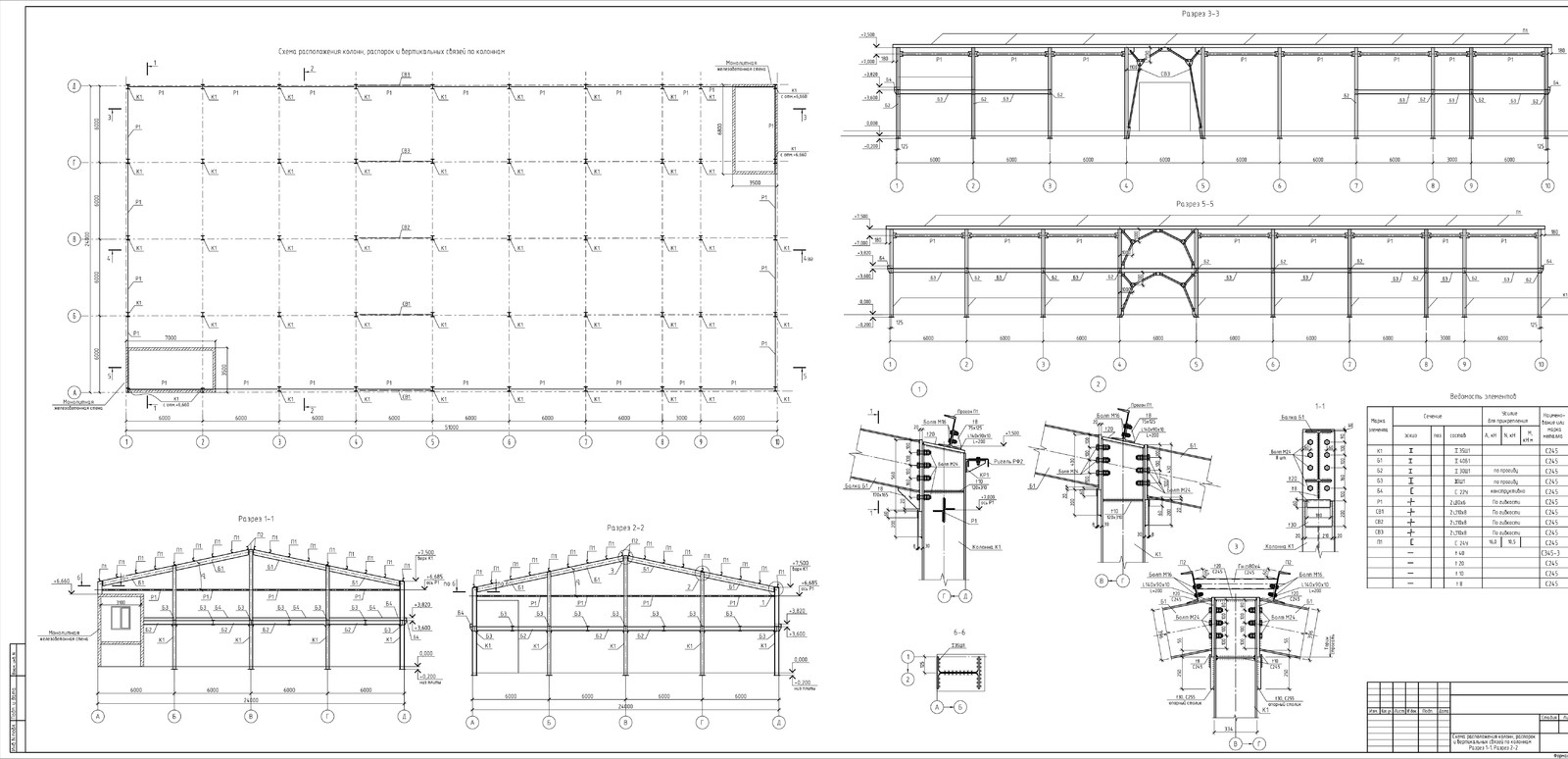
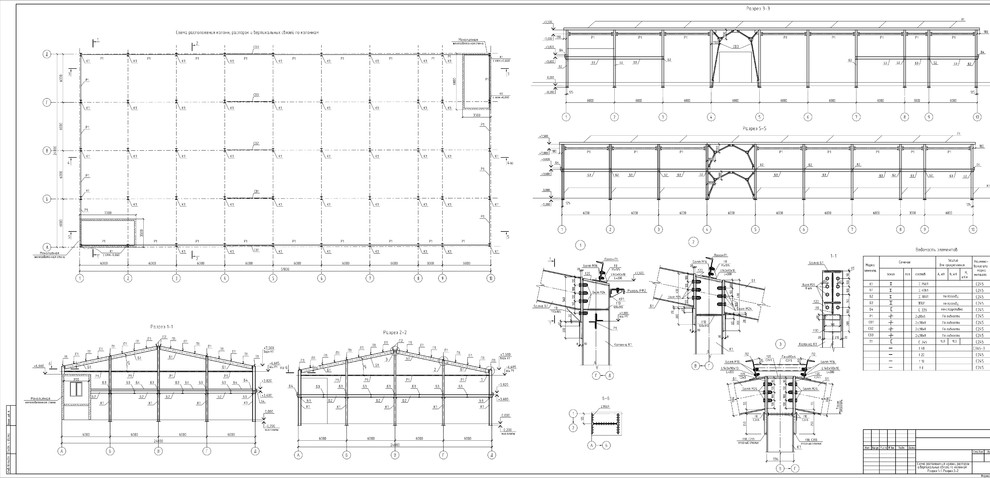
Строительство комплекса производственных зданий на территории завода
Здание стоянки пожарной техники
Другие фотографии в проекте
Вопросы к фото 0
Задайте вопрос
Вам ответят эксперты. Пришлем уведомление, когда вам ответят




