
Проектирование и строительство
4.79
·
10 отзывов
Современная вилла "Q"
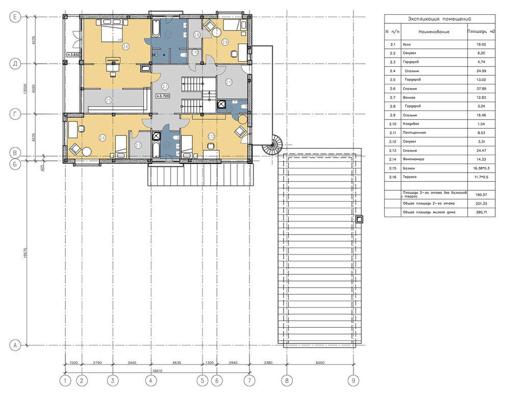
Современная загородная вилла в скандинавском исполнении построена по нашему рабочему проекту. Удобная компоновка дома с гаражом и хозяйственными помещениями обеспечивает комфортную подъездную зону. Дом заключен в простую кубическую форму с верхним фонарем, обеспечивающим естественное освещение внутреннего холла на втором этаже. . . Авторы проекта: . Главный архитектор проекта - Малышев Вадим, аттестованный эксперт. . Архитекторы проекта - Малышев Вадим, Закурин Алексей. . Главный конструктор проекта - Климшин Дмитрий, кандидат технических наук. . Инженерные решения - Смирнов Михаил. . Сопровождение - Закурин Алексей.
Другие фотографии в проекте
Вопросы к фото 0
Задайте вопрос
Вам ответят эксперты. Пришлем уведомление, когда вам ответят




