
Дизайнеры интерьера
5
·
42 отзыва
Современная трёшка с крутой гостиной и спальней
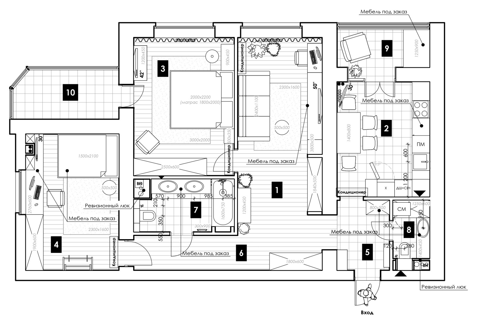
К слову, балкон получился бомбезным! Ничего общего с лоджиями, на которых хранится всё, что не поместилось в шкафах. Чтобы визуально сделать кухню и лоджию единым пространством, мы использовали одно напольное покрытие и прозрачные двери: такие и смотрятся воздушно и, что важно, не препятствуют проникновению дневного света.
Другие фотографии в проекте
Вопросы к фото 0
Задайте вопрос
Вам ответят эксперты. Пришлем уведомление, когда вам ответят
Похожие фотографии

Реализованный проект Квартиры для семьи со школьником
Анна Гусева
Botanika 65m
Ирина Швецова

ПРИМОРСКИЙ КВАРТАЛ | САНКТ-ПЕТЕРБУРГ
Екатерина Глушенко

Квартира в ЖК Прайм Приморский СПб (с частичной отделкой от застройщика)
Art Déco

Двухкомнатная квартира в ЖК "Черная Речка"
Основной задачей было построить комфортный, светлый и функциональный интерьер для молодой семьи с двумя однополыми детьми. Самое важное, это разместить достаточно хранения и выделить два отдельных санузла, один с душевой, второй с ванной комнатой. Просторная кухня-гостиная, которая вместит в себя не только всех домашних, но и гостей.
Софья Калугина

Проект современной квартиры площадью 84 м²
Современный интерьер для жизни без перегрузки — в этой квартире 84 м² всё продумано до мелочей: зонирование без перепланировки, простые, но выразительные материалы, светлая база с акцентами, разумные инженерные решения. Дизайн, в котором комфорт и практичность идут рука об руку, а стиль не требует излишних затрат.
Domeo 🏆 Лучшая компанию по ремонту МСК

Квартира в ЖК_Измайлово
MT design interiors

ЖК Алия
Лариса Байракова

Дизайн проект студии и ремонт в ЖК Прокшино
Студия Дизайна

Освещение для балкона
Георгий Теряев

Жк Фридланд
Mira Space

ЖК "Васильевский квартал" ул. Наличная 28
Заказчики обратились к нам для проведения ремонта по дизайн-проекту Евгении Громовой. Этот ремонт был выполнен в квартире во вторичном жилье. Для начала нам необходимо было полностью демонтировать все перегородки, коммуникации и напольные покрытия, а затем приступить к основным ремонтным работам. Мы завершили ремонт за 6 месяцев в квартире площадью 70 м². . . Комплекс расположен на Васильевском острове, в центре Петербурга, и является одним из немногих комфортных мест для проживания.
RemArt




