
Дизайнеры интерьера
5
·
10 отзывов
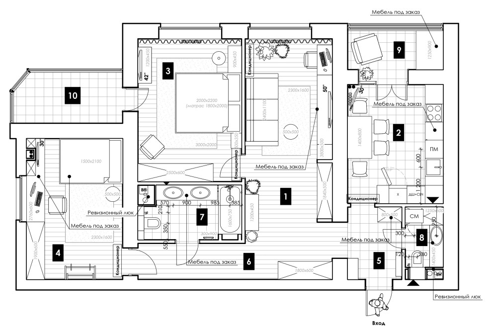
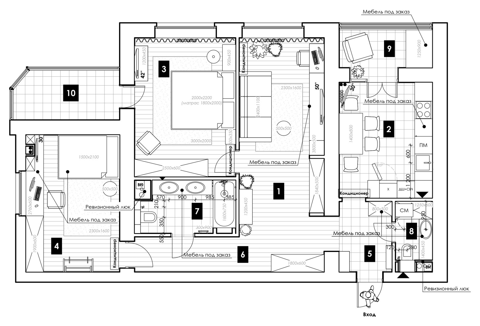
Современная трёшка с крутой гостиной и спальней
Общая площадь квартиры — 102 кв. м, оформлен интерьер квартиры в современном стиле. В гостиной демонтировали часть стены с дверью, сделав её одним общим пространством с коридором — это добавило простора и воздуха. Вход в спальню сделали из гостиной. Дверной проём в кухне сместили ближе к стене, чтобы гармонично разместить кухонную мебель и столбик с бытовой техникой. . .
Другие фотографии в проекте
1 раз сохранено в статьи и альбомы идей:
Добавил(-а) в альбом: Идеи пользователя Maria Vl
Вопросы к фото 0
Задайте вопрос
Вам ответят эксперты. Пришлем уведомление, когда вам ответят




