
Архитекторы
5
·
5 отзывов
Smolenka Loft
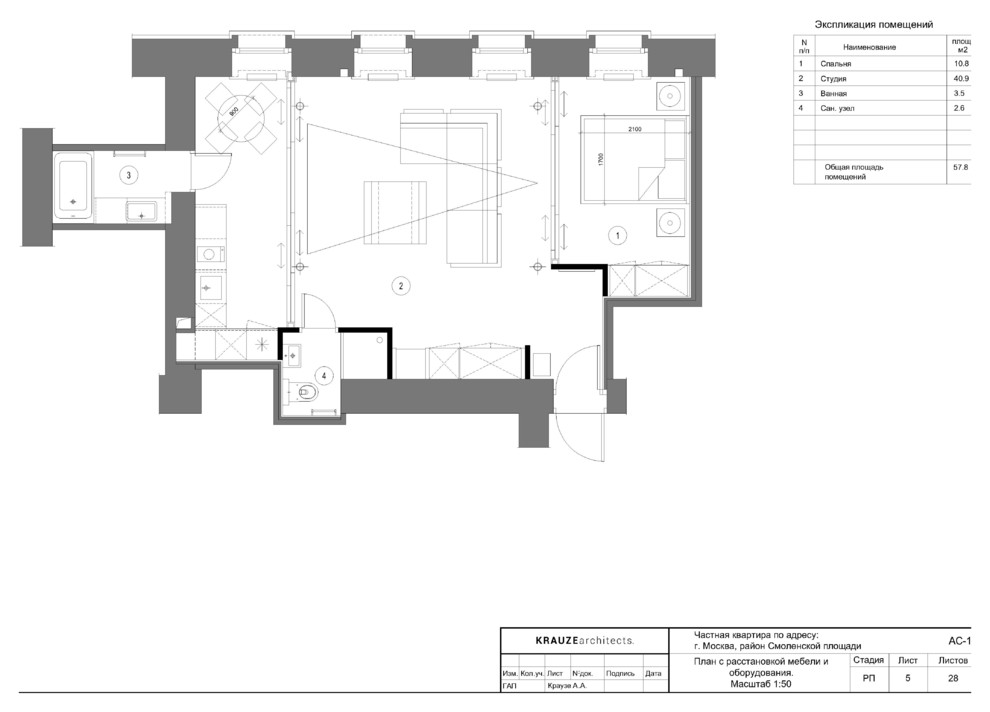
Заказчик хотел видеть интересный проект для молодого человека, квартиру, в которой он мог бы комфортно жить, учиться и принимать гостей. Необходимо было произвести комплексную реконструкцию старой квартиры с учетом современных требований к жилью. Дом находится в районе Смоленской площади. Это бывший доходный дом постройки начала ХХ века. Квартира до начала реконструкции представляла собой печальное зрелище, ремонта в ней более 30 лет. . Изначально квартира двухкомнатная, перепланированная после уплотнения доходного дома. Интересной особенностью исходной планировки было наличие обособленных ванной и сан узла, при этом вход в ванную был организован через кухню. Несущие стены кирпичные, перекрытия – деревянные по металлическим балкам. Кирпичная кладка высокого качества, сохранилась отлично. . При создании концепции проекта основное внимание уделили многофункциональному использования пространства квартиры. Был разработан проект комплексного усиления конструкции перекрытия и замены разгружающих деревянных перегородок на металлические колоны и двутавровые балки. Пространство зонировано массивными раздвижными перегородками, нагрузка, от которых передается на новый несущий каркас. По сути, на существующих несущих кирпичных стенах мы разместили новый металлокаркас, изолированный от нагрузок от существующих перекрытий, и внутри него смонтировали интерьер квартиры. . Существующие жилую комнату, спальню и кухню мы объединили в единое пространство, разграниченное высокими раздвижными перегородками от пола до потолка. Такое решение позволило создать легко трансформируемое пространство. В гостиной организована встроенная мультимедийная система: в конструкции подвесного потолка скрыт экран для проектора и размещена потолочная акустика, установлена система управления светом с несколькими сценариями, моторизованные рулонные экраны на окнах, хранилище данных и игровая приставка. Управление всей системой осуществляется с айпада, стойка с техникой размещена во встроенном шкафу. Площадь сан узла увеличили и разместили душевую кабину, ванную сохранили в существующих габаритах, но изменили расстановку сантехники. . Исторические кирпичные стены и своды над оконными проемами стали изюминкой проекта. Качественная покраска проявила структуру кирпичной кладки, а дорогие дубовые окна создали четкую графику. В интерьере применены: массив натурального дерева, шпон, стекло и металл, окрашенный в черный цвет, черный кориан. . Мы разработали и изготовили с российской мебельной компанией индивидуальную встроенную мебель, кухню, межкомнатные двери и раздвижные перегородки. Мягкая мебель и журнальный стол итальянские. Встроенный свет бельгийский, декоративные светильники американские. Шерстяной ковер ручной работы нашли в Непале специально для этого проекта.
Другие фотографии в проекте
Вопросы к фото 3
Александр Краузе
8 л.
Lela Kalustova
8 л.
Александр Краузе
8 л.
Lela Kalustova
8 л.
Юлия Волкова
9 л.
Колонки для проектора
Александр Краузе
9 л.
Мария ___
8 л.
Polina Maximchuk
10 л.
батареи
Александр Краузе
10 л.
Polina Maximchuk
10 л.
Polina Maximchuk
10 л.
Александр Краузе
10 л.
Задайте вопрос
Вам ответят эксперты. Пришлем уведомление, когда вам ответят
$$, Deltalight, brick wall, industrial, loft, meridiani, visualcomfort, Белый, Гостиная, Индустриальный, Маленький, Москва, Открытая планировка, Тёмная паркетная доска
Похожие фотографии

The Loft
Стильный дизайн: маленькая открытая гостиная комната в стиле лофт с музыкальной комнатой, белыми стенами, темным паркетным полом, мультимедийным центром, коричневым полом, многоуровневым потолком и обоями на стенах для на участке и в саду - последний тренд
Olga Shchukina

Гостиная
Стильный дизайн: маленькая открытая гостиная комната в стиле лофт с домашним баром, белыми стенами, полом из ламината, телевизором на стене и бежевым полом без камина для на участке и в саду - последний тренд
Елена Алексеева

Гостиная
На фото: маленькая открытая гостиная комната в стиле лофт с домашним баром, белыми стенами, полом из ламината, телевизором на стене и бежевым полом без камина для на участке и в саду
Елена Алексеева

Гостиная
Пример оригинального дизайна: маленькая открытая гостиная комната в стиле лофт с домашним баром, белыми стенами, полом из ламината, телевизором на стене и бежевым полом без камина для на участке и в саду
Елена Алексеева

Гостиная
Идея дизайна: маленькая открытая гостиная комната в стиле лофт с домашним баром, белыми стенами, полом из ламината, телевизором на стене и бежевым полом без камина для на участке и в саду
Елена Алексеева

Квартира в ЗИЛАРТ с красной дверью
Пример оригинального дизайна: маленькая открытая гостиная комната в стиле лофт с белыми стенами, паркетным полом среднего тона, отдельно стоящим телевизором и бежевым полом для на участке и в саду
Надя Требухина

Квартира в ЗИЛАРТ с красной дверью
На фото: маленькая открытая гостиная комната в стиле лофт с белыми стенами, паркетным полом среднего тона, отдельно стоящим телевизором и бежевым полом для на участке и в саду с
Надя Требухина

Квартира в ЗИЛАРТ с красной дверью
Свежая идея для дизайна: маленькая открытая гостиная комната в стиле лофт с белыми стенами, паркетным полом среднего тона, отдельно стоящим телевизором и бежевым полом для на участке и в саду - отличное фото интерьера
Надя Требухина

Квартира в ЗИЛАРТ с красной дверью
На фото: маленькая открытая, объединенная гостиная комната в стиле лофт с белыми стенами, паркетным полом среднего тона, отдельно стоящим телевизором и бежевым полом для на участке и в саду
Надя Требухина

Лаконичный и современный
Пример оригинального дизайна: маленькая открытая, объединенная гостиная комната в современном стиле с белыми стенами, темным паркетным полом, телевизором на стене и коричневым полом для на участке и в саду
Дизайн-студия «Уютная Квартира»

Лаконичный и современный
Стильный дизайн: маленькая открытая гостиная комната в современном стиле с белыми стенами, темным паркетным полом, телевизором на стене и коричневым полом для на участке и в саду - последний тренд
Дизайн-студия «Уютная Квартира»

Лаконичный и современный
Стильный дизайн: маленькая открытая, объединенная гостиная комната в современном стиле с белыми стенами, темным паркетным полом, телевизором на стене и коричневым полом для на участке и в саду - последний тренд
Дизайн-студия «Уютная Квартира»





Lela Kalustova
8 л.
Перегородки в гостиной