
Дизайнеры интерьера
5
·
11 отзывов
Славянский бульвар
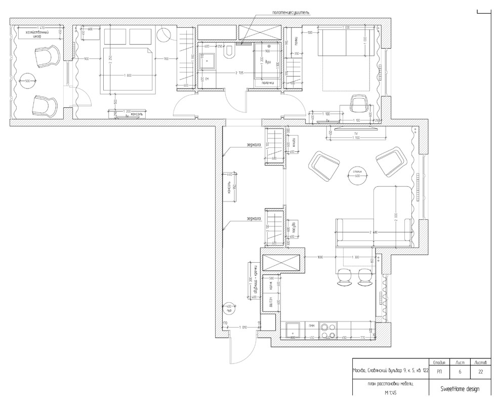
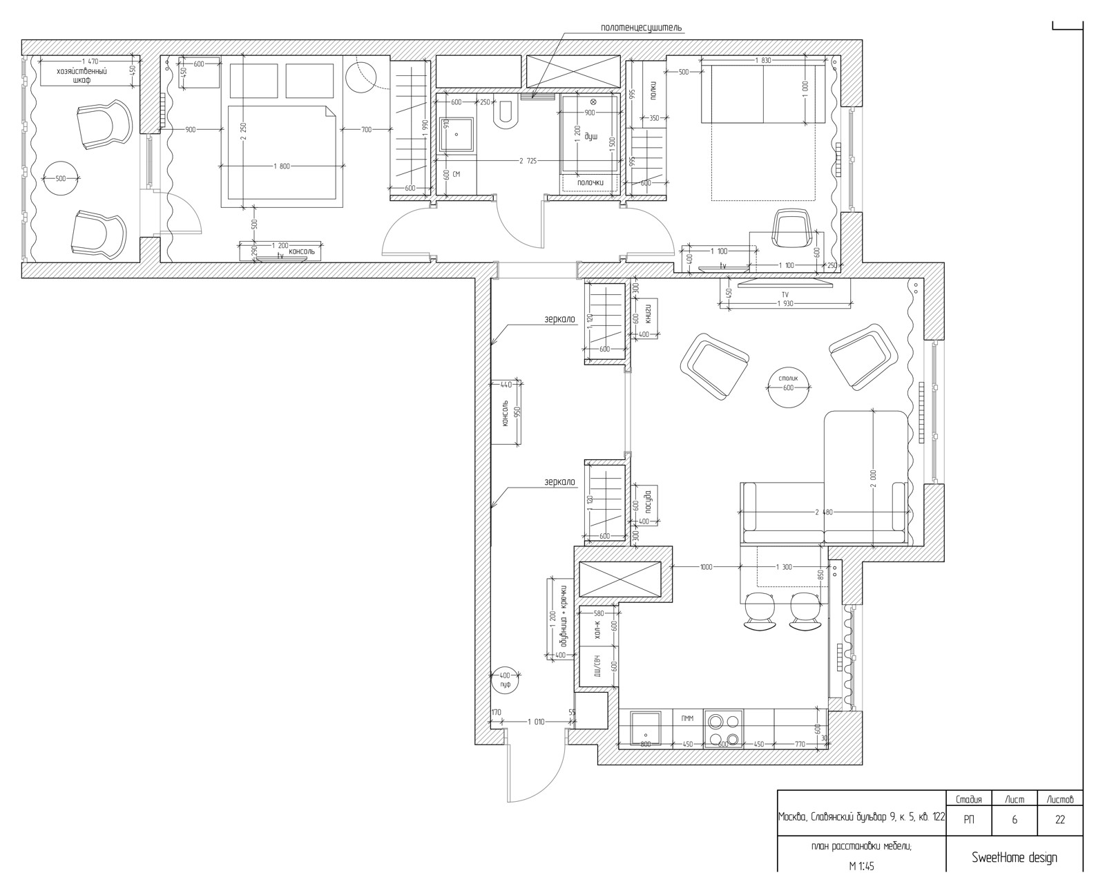
Изначально трехкомнатная квартира с маленькой кухней превратилась в двушку с просторной кухней-гостиной, уютным кабинетом и спальней с видовой лоджией. Благодаря встроенным системам хранения, квартира выглядит тщательно продуманной. Небольшой санузел вмещает в себя просторную душевую и стиральную машину. Скрытую в мебель. Дизайн был разработан для успешной женщины, ценящей комфорт и индивидуальность.
Другие фотографии в проекте
Вопросы к фото 0
Задайте вопрос
Вам ответят эксперты. Пришлем уведомление, когда вам ответят




