
Архитекторы
0
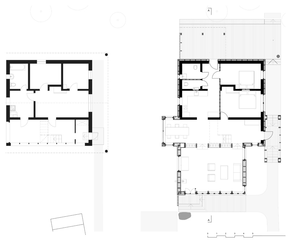
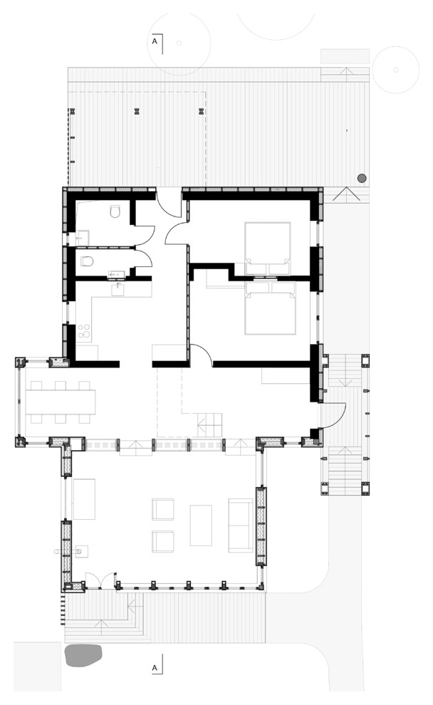
Реновация дачи в Тарусе
По заданию заказчика гостиная представляет собой открытое многофункциональное пространство с печью буржуйкой и большой площадью остекления, создающими атмосферу традиционной Тарусской веранды. Выбирая конструкцию печи, авторы проекта ориентировались на следующие положения: она должена была быть лаконичной по дизайну, недорогой и обладать высоким КПД чтобы обогреть достаточно большое помещение. Зону вокруг печи, впрочем как и все помещения дома, оформили без декоративных излишеств. Cтены выкрасили в белый - так пространство кажется просторнее, к тому же важно было создать нейтральный фон для картин, число которых постоянно растет. Для подсветки были использованы шинные системы и минималистичные по дизайну софиты. . Антикварная мебель конца XIX-начала XX века, которую коллекционируют владельцы дома так же требовала деликатного фона, поэтому старались не перегружать интерьер лишними деталями. Яркие сундуки были найдены в антикварном салоне, а кресла, диван и стулья, образующие зону отдыха в гостиной, куплены на вернисаже в Измайлово. Мебель была в хорошем состоянии и требовала лишь небольшой реставрации, но обивку хозяйке пришлось менять полностью. . . фото: Сергей Красюк
Другие фотографии в проекте
Вопросы к фото 0
Задайте вопрос
Вам ответят эксперты. Пришлем уведомление, когда вам ответят
Похожие фотографии

Гостиная для телепроекта Фазенда Лайф
На фото: открытая гостиная комната среднего размера в стиле фьюжн с с книжными шкафами и полками, белыми стенами, светлым паркетным полом, отдельно стоящим телевизором и бежевым полом
Диана Миронова

Камышовый рай для семьи и семейной реликвии
Пример оригинального дизайна: открытая гостиная комната среднего размера в стиле фьюжн с белыми стенами, полом из винила, телевизором на стене и серым полом
Владимир Фирсов

Камышовый рай для семьи и семейной реликвии
Свежая идея для дизайна: открытая гостиная комната среднего размера в стиле фьюжн с белыми стенами, полом из винила, телевизором на стене и серым полом - отличное фото интерьера
Владимир Фирсов

Камышовый рай для семьи и семейной реликвии
Стильный дизайн: открытая гостиная комната среднего размера в стиле фьюжн с белыми стенами, полом из винила, телевизором на стене и серым полом - последний тренд
Владимир Фирсов

Камышовый рай для семьи и семейной реликвии
Идея дизайна: открытая гостиная комната среднего размера в стиле фьюжн с белыми стенами, полом из винила, телевизором на стене и серым полом
Владимир Фирсов

Studio with a soaring bed over grass-plot /Студия с парящей кроватью и лужайкой
Свежая идея для дизайна: открытая гостиная комната среднего размера в стиле фьюжн с с книжными шкафами и полками, белыми стенами, полом из ламината, горизонтальным камином, отдельно стоящим телевизором и серым полом - отличное фото интерьера
Татьяна Никитина

Studio with a soaring bed over grass-plot /Студия с парящей кроватью и лужайкой
Пример оригинального дизайна: открытая гостиная комната среднего размера в стиле фьюжн с с книжными шкафами и полками, белыми стенами, полом из ламината, горизонтальным камином, отдельно стоящим телевизором и серым полом
Татьяна Никитина

Studio with a soaring bed over grass-plot /Студия с парящей кроватью и лужайкой
На фото: открытая гостиная комната среднего размера в стиле фьюжн с с книжными шкафами и полками, белыми стенами, полом из ламината, горизонтальным камином, отдельно стоящим телевизором и серым полом с
Татьяна Никитина

Studio with a soaring bed over grass-plot /Студия с парящей кроватью и лужайкой
Стильный дизайн: открытая гостиная комната среднего размера в стиле фьюжн с с книжными шкафами и полками, белыми стенами, полом из ламината, горизонтальным камином, отдельно стоящим телевизором, серым полом и фасадом камина из металла - последний тренд
Татьяна Никитина

Квартира 145 м2 "каледоскоп"
Свежая идея для дизайна: открытая гостиная комната среднего размера в стиле фьюжн с белыми стенами, паркетным полом среднего тона и телевизором на стене - отличное фото интерьера
Ирина Лобачева

Квартира 145 м2 "каледоскоп"
Пример оригинального дизайна: открытая гостиная комната среднего размера в стиле фьюжн с белыми стенами, паркетным полом среднего тона и телевизором на стене
Ирина Лобачева

Яркая евротрешка
Стильный дизайн: открытая гостиная комната среднего размера в стиле фьюжн с с книжными шкафами и полками, белыми стенами, паркетным полом среднего тона, стандартным камином, фасадом камина из штукатурки, телевизором на стене и бежевым полом - последний тренд
Вера Откидач




