
Архитекторы
0
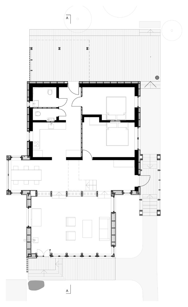
Реновация дачи в Тарусе
План дачи после реновации . Архитекторы: Алексей Дунаев, Марианна Запольская
Другие фотографии в проекте
Вопросы к фото 0
Задайте вопрос
Вам ответят эксперты. Пришлем уведомление, когда вам ответят

Архитекторы
0
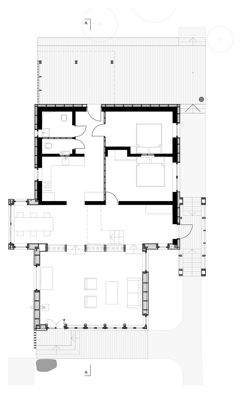
План дачи после реновации . Архитекторы: Алексей Дунаев, Марианна Запольская
Другие фотографии в проекте
Вам ответят эксперты. Пришлем уведомление, когда вам ответят