
Дизайнеры интерьера
5
·
1 отзыв
Реконструкция бани и летняя кухня
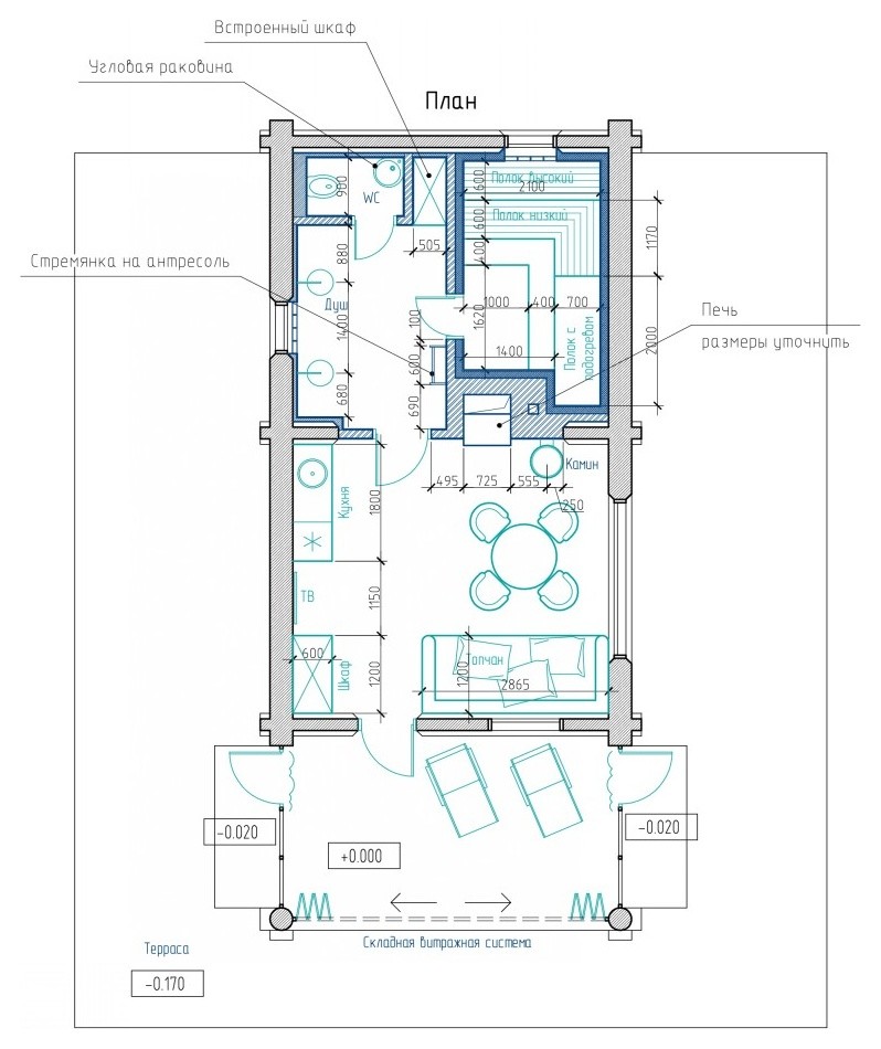
План бани. . Необходимо было реконструировать существующий каркас из бруса, сделать его более современным в стиле остальных построек комплекса, разместить в пространство бани все необходимое для комфортного и непринужденного времяпровождения. . . Проект выполнен в соавторстве с Федором Бухтояровым
Другие фотографии в проекте
Вопросы к фото 0
Задайте вопрос
Вам ответят эксперты. Пришлем уведомление, когда вам ответят




