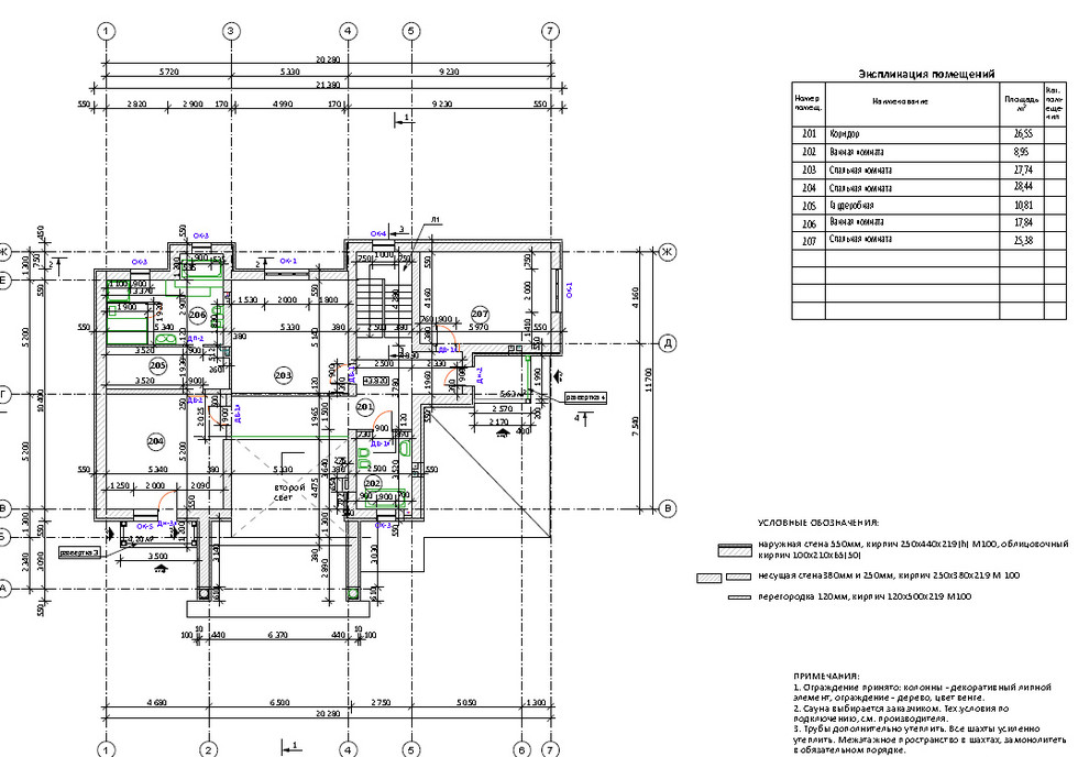
Рабочий проект жилого дома 550 кв.м
Elena Monten

Elena Monten

Архитекторы

5

·

10 отзывов

Рабочий проект жилого дома 550 кв.м

Разработка рабочей документации. Разделов Архитектура. Конструктивные чертежи. Смежные разделы: водопровод, канализация, отопление. Все разделы кроме Архитектуры, разрабатывались нашими специалистами.

Другие фотографии в проекте

Вопросы к фото 0

Задайте вопрос

Вам ответят эксперты. Пришлем уведомление, когда вам ответят