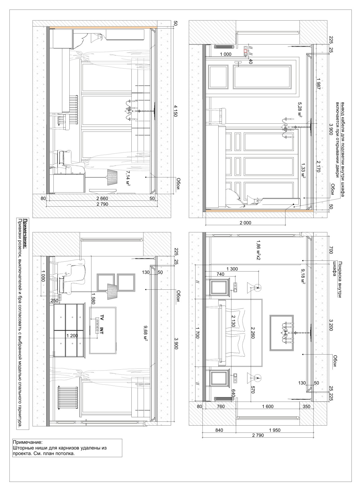
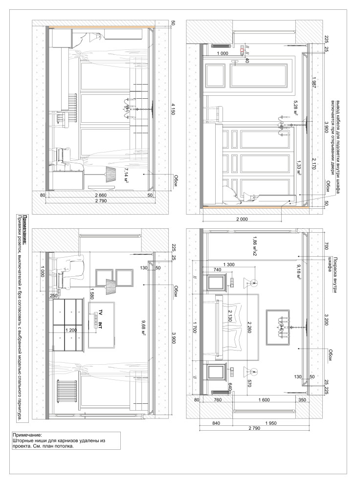
Другие фотографии в проекте Рабочий и эскизный проект. Таун-хауз Вяземское 156 м.кв.
Вам ответят эксперты. Пришлем уведомление, когда вам ответят
Москва, Проект гостиной, Проект детской, дизайн дома, проект ванных комнат, проект дома, проект кухни, проект таун-хауза