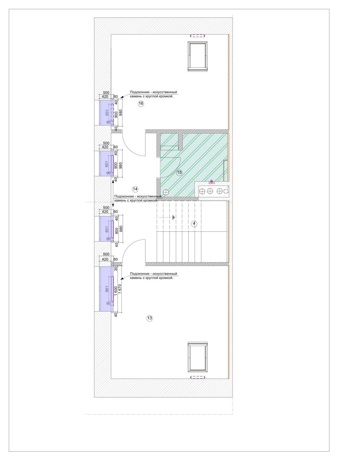
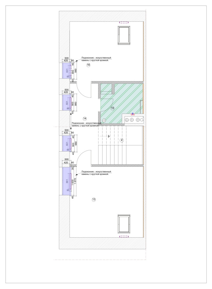
Рабочий и эскизный  проект. Таун-хауз Вяземское 156 м.кв.

Другие фотографии в проекте Рабочий и эскизный проект. Таун-хауз Вяземское 156 м.кв.

Вопросы к фото 0

Задайте вопрос

Вам ответят эксперты. Пришлем уведомление, когда вам ответят

Москва, Проект гостиной, Проект детской, дизайн дома, подбор отделочных материалов, проект ванных комнат, проект дома, проект кухни, проект таун-хауза, текстильный декор