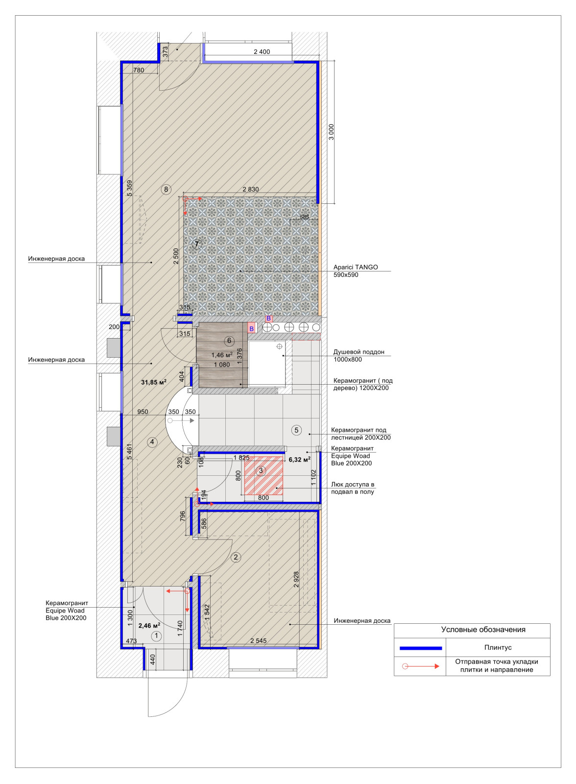
Рабочий и эскизный  проект. Таун-хауз Вяземское 156 м.кв.

Другие фотографии в проекте Рабочий и эскизный проект. Таун-хауз Вяземское 156 м.кв.

Вопросы к фото 0

Задайте вопрос

Вам ответят эксперты. Пришлем уведомление, когда вам ответят

Москва, дизайн дома, проект дома, проект кухни, проект таун-хауза