
Дизайнеры интерьера
0
Проектная документация. Пример.
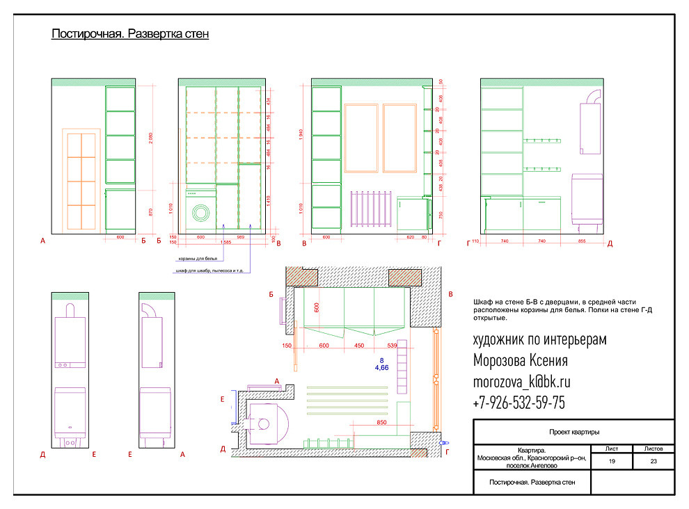
В этом доме индивидуальное отопление. Это особенность. Поэтому это не только постирочная, но и бойлерная. Здесь размещается газовый бойлер с накопительным баком и система управления горячей воды. . . На этом чертеже показываю все стены помещения и указываю предложения по системе хранения. Схема мебели для заказа разрабатывается мной на основе пожеланий и потребностей клиента. Их я выявляю при составлении Техзадания. . . Шкафы в постирочной изготавливались по индивидуальным размерам. Эта развертка и чертёж аксинометрии постирочной служили эскизами. Я их подготовила для столярной мастерской. . . Автор: Ксения Морозова
Другие фотографии в проекте
Вопросы к фото 0
Задайте вопрос
Вам ответят эксперты. Пришлем уведомление, когда вам ответят




