
Архитекторы
5
·
3 отзыва
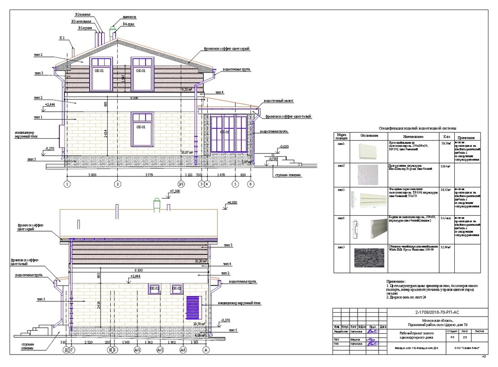
Проект жилого дома
Рабочий проект жилого дома в Московской области
Другие фотографии в проекте
Вопросы к фото 0
Задайте вопрос
Вам ответят эксперты. Пришлем уведомление, когда вам ответят

Архитекторы
5
·
3 отзыва
Рабочий проект жилого дома в Московской области
Другие фотографии в проекте
Вам ответят эксперты. Пришлем уведомление, когда вам ответят