logo
Проект: Оливковый сад "ЖК Фестиваль парк"

Другие фотографии в проекте Проект: Оливковый сад "ЖК Фестиваль парк"

Вопросы к фото 0

Задайте вопрос

Вам ответят эксперты. Пришлем уведомление, когда вам ответят

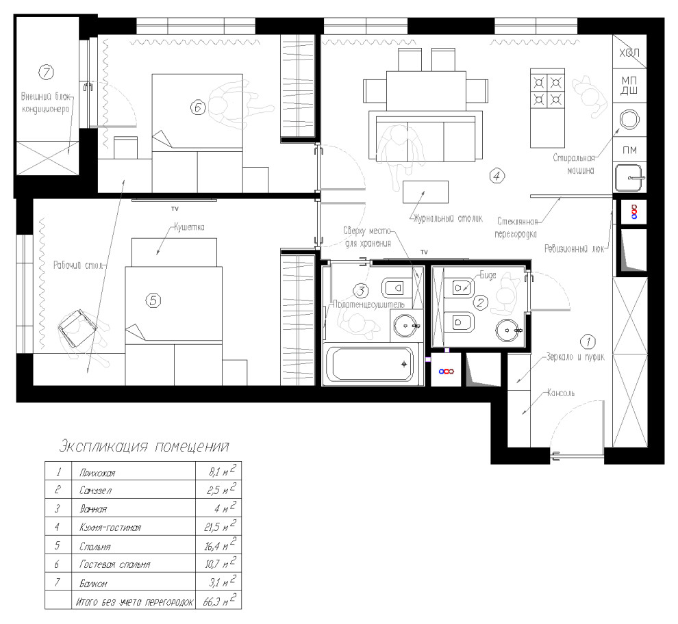
Контемпорари, Москва, двушка, план квартиры, планировка

Мария Зуева

Мария Зуева

Дизайнеры интерьера

Смотреть профиль

5

отзывов

5

Рейтинг

Проект: Оливковый сад "ЖК Фестиваль парк"

Проект 2ух комнатной квартиры 66 м2. Задача состояла в том, чтобы создать интерьер наполненный воздухом и светом. . . Заказчики не хотели делать глобальную перепланировку. Поэтому мы предложили объединить кухню с гостиной. Таким образом, мы смогли выделить небольшую зону отдыха, а за стенкой образовалась уютная гостевая спальня! Так же мы убрали узкий коридор ведущий в комнаты и увеличили площадь санузла. . . Мы отделили прихожую от зоны кухни легкой перегородкой с рифленым стеклом, обрамленным рамой из латуни. Эта перегородка служит не только зонирующим элементом, благодаря ей в прихожую попадает много естественного света, поэтому даже самые дальние уголки квартиры всегда будут залиты солнечным светом. . . Гостиная является центром квартиры. Стильные и современные решения в интерьере позволяют нам с легкостью сочетать в этой комнате множество функций. Такое пространство подходит как для уютных вечеров с любимой книгой, так и для веселых вечеринок с друзьями и даже для романтического ужина при свечах. . .

Вопросы к фото 0