Другие фотографии в проекте Проект Мегарон μέγαρον
Вам ответят эксперты. Пришлем уведомление, когда вам ответят
Двухэтажный дом, Современный, балкон, вилла, гостиная, дом, дом с гаражом, зеленая крыша, керамика, модернизм, монолитный каркас, панорамное остекление, планкен, плоская крыша, ригельный кирпич, стеклянный фасад, термодоска
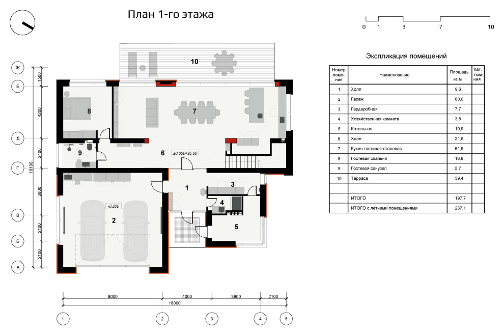
Объемно-планировочное решение . Таким образом, дом обрел два активных фасада: главный, обращенный на северо-восток, и дворовой, ориентированный на юго-запад. Боковые фасады, обращенные на соседние участки, в свою очередь, получились утилитарные и почти без окон. Полагаю, такое решение оправдано для частной архитектуры, так как ее главными адресатами и зрителями являются сам владелец, его семья и гости. . Чтобы избежать размещения жилых комнат над гаражом было принято решение воплотить его в одноэтажном объеме, пристроенном к основному телу дома. Крыша гаража задумана эксплуатируемой, с зелеными насаждениями и небольшой террасой. Выход предусмотрен из кабинета. Там же аккуратно разместятся наружные блоки климатической системы. . Стеклянная входная группа заглублена относительно плоскости фасада, образуя крыльцо под навесом. С этой площадки можно также попасть в котельную непосредственно с улицы. Главный вход ведет в холл — наполненное светом буферное пространство квадратной формы, из которого можно попасть в гараж, помещение для мойки лап, гардеробную и котельную. Широкое использование светопрозрачных конструкций по оси холл-гостиная-терраса-сад создает ощущение открытости и визуальной связности пространства. В гостиной высота потолков составляет 3,9 метра, а в холле и вспомогательных помещениях — 3 метра. Благодаря этому создаётся театральный эффект поэтапного раскрытия интерьера по мере того, как вы продвигаетесь вглубь дома. Гостиная отделена от уличной террасы стеклянной подъемно-раздвижной четырехстворчатой конструкцией ALT SL160 8000х3300 мм с двумя активными створками по середине, открывающими свободный проем шириной 4000 мм. Консольный балкон служит навесом, который защищает террасу от дождя и снега. Он также помогает избежать яркого света и перегрева в гостиной в жаркие летние дни. При этом низкие лучи западного солнца свободно проникают в интерьер, создавая комфортное освещение в вечернее время. . Все жилые комнаты на втором этаже обращены окнами во внутренний двор, а кабинет и постирочная отнесены на противоположную сторону. Неизбежный монотонный коридор на втором этаже превращен в галерею благодарю витражному остеклению, открывающему вид на зеленую кровлю гаража. Мастер-блок объединяет хозяйскую спальню, гардеробную и санузел и одновременно из всех помещений предусмотрен выход на балкон. .