Вам ответят эксперты. Пришлем уведомление, когда вам ответят
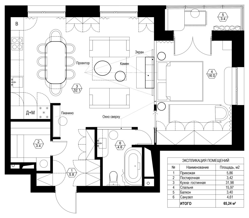
Москва, Проект квартиры 65 м2 Яркое, Скандинавский, акцентные аксессуары, любящей дружеские посиделки за большим столом. Смелые сочета, наполненное уютом пространство для хлебосольной хозяйки, рисунков и цветов
. Проект квартиры 65 м2 . Яркое, наполненное уютом пространство для хлебосольной хозяйки, любящей дружеские посиделки за большим столом. Смелые сочетания фактур, рисунков и цветов, акцентные аксессуары, всё это наполняет дом позитивной и располагающей атмосферой. . Автор Александра Журавлева . Соавтор Александр Садовский