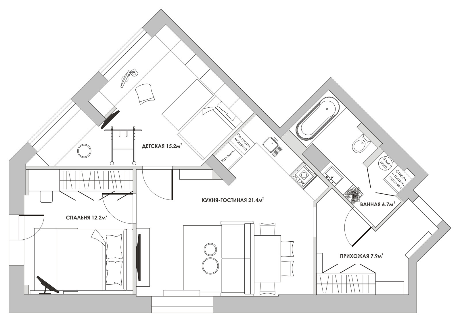
Другие фотографии в проекте Проект квартиры 63,7кв.м. для молодой семьи
Ещё 14 фото
Сначала новые
Вам ответят эксперты. Пришлем уведомление, когда вам ответят
Ольга Крысова
Дизайнеры интерьера
3
отзыва
5
Рейтинг
Контемпорари
Киров