
Архитекторы
0
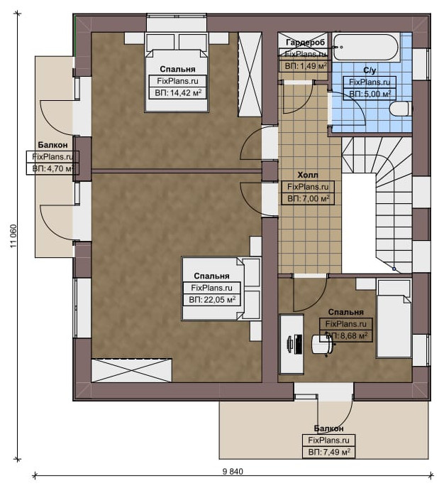
Проект двухэтажного дома 11х9 м S135м2 F-16433
Количество этажей |2|;, Количество спален |4|;, Площадь |135.43| м2;, Материал |Газобетон;, Материал фасада |Штукатурный ;, Тип фундамента |Фундаментная плита;, Тип кровли |Плоская;, Материал кровли |Неэксплуатируемая кровля;, Тип строения |Жилой дом;, Вид поставки |Бумажная версия;, В проект входят| кухня, кухня-столовая, гостиная, ванная, санузел;, Мансардный этаж |Нет;, Количество ванных комнат ||;, Крыша |Плоская;, Гараж |;, Стиль |Современный;, Терраса |Нет;, Цоколь |Нет;, Балкон |Нет;, Второй свет |;, Сауна/баня |Нет;, Бассейн |Нет;, Спортзал |Нет;, Количество жилых комнат |4|;, Количество санузлов ||;, Лоджия |Нет;, Мансарда |Нет;, Чердак |Нет;
Другие фотографии в проекте
Вопросы к фото 0
Задайте вопрос
Вам ответят эксперты. Пришлем уведомление, когда вам ответят
Похожие фотографии

Проект двухэтажного дома 16х24 м S333м2 F-16658
Ерванд Григорян

Проект одноэтажного дома 11х12м S104м2 F-17351
Ерванд Григорян

Клубный поселок «Artwood»
Идея дизайна: двухэтажный, деревянный, разноцветный частный загородный дом среднего размера в современном стиле с плоской крышей и крышей из смешанных материалов
Архитектурное бюро ДИЗАЙНУС

Проект одноэтажного дома 17х14м S139м2 F-15200
Ерванд Григорян

Проект дома с мансардой 17х15 м S305м2 F-16262
Ерванд Григорян

Проект двухэтажного дома 13х12 м S154м2 F-17414
Ерванд Григорян

Проект двухэтажного дома 14х14 м S215м2 F-17657
Ерванд Григорян

Вечерний вид
Идея дизайна: двухэтажный, белый частный загородный дом среднего размера в современном стиле с комбинированной облицовкой, плоской крышей и крышей из смешанных материалов
Архитектурная студия Нулевая Отметка

Главный фасад
Источник вдохновения для домашнего уюта: двухэтажный, белый частный загородный дом среднего размера в современном стиле с комбинированной облицовкой, плоской крышей и крышей из смешанных материалов
Архитектурная студия Нулевая Отметка

Дом на 2000м2
Пример оригинального дизайна: большой, двухэтажный, коричневый дом в стиле модернизм с комбинированной облицовкой, плоской крышей, крышей из смешанных материалов, серой крышей и отделкой планкеном
Светлана Воронкова

Дом Рериха
Пример оригинального дизайна: двухэтажный, черный дом среднего размера в современном стиле с комбинированной облицовкой, плоской крышей, крышей из смешанных материалов и отделкой планкеном
Владимир Симоненко

Modern House
Houzz Logo Print
Кирилл Егоров




