logo
КВАРТИРА НА КУУСИНЕНА

Другие фотографии в проекте ПЛАНИРОВКИ

Вопросы к фото 0

Задайте вопрос

Вам ответят эксперты. Пришлем уведомление, когда вам ответят

Москва, вход по оси окна, гостиная с кабинетом, изолированная кухня, окна в пол, открытые планировки, перепланировка, планировки, рабочий проект чертежей, французские окна, чертежи, чертежи для строителей

Наталья Юнг Светлана Озерова

Наталья Юнг Светлана Озерова

Дизайнеры интерьера

Смотреть профиль

3

отзыва

5

Рейтинг

ПЛАНИРОВКИ

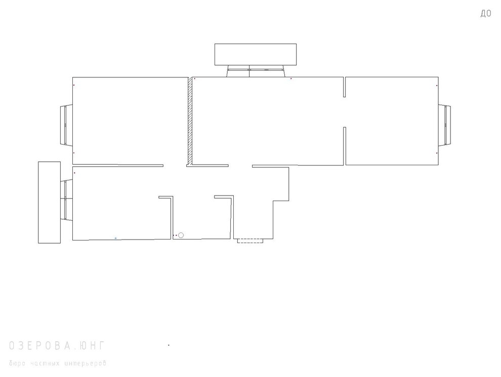
Интересный, запоминающийся интерьер обязательно имеет в своей основе идею. Идея – понятие условное, это может быть конкретный образ или ощущение, история или даже мечта. . Выразить эту идею в архитектуре и планировке, сделать это эстетично и технически грамотно считаем первостепенной задачей в своей работе. Красивое пространство подчас даже в декорировании не нуждается. И наоборот, бывает дизайнерского арсенала не хватает, чтобы скрыть недостатки уже существующей планировки. . . Работа с пространством - это наша любовь и гордость! Примеры очень разных планировок вы можете посмотреть в этом альбоме. . . OYбюро предлагает услуги по планированию квартир и частных домов. Такая услуга может быть полезна тем, кто желает декорировать интерьер самостоятельно. Проект включает в себя планировку (перепланировку) вашего интерьера и ее детальную проработку, представленную в виде альбома чертежей для строительной бригады. . . Вы так же можете обратиться к нам за консультацией по всем вопросам планирования квартиры или дома. . .

Вопросы к фото 0