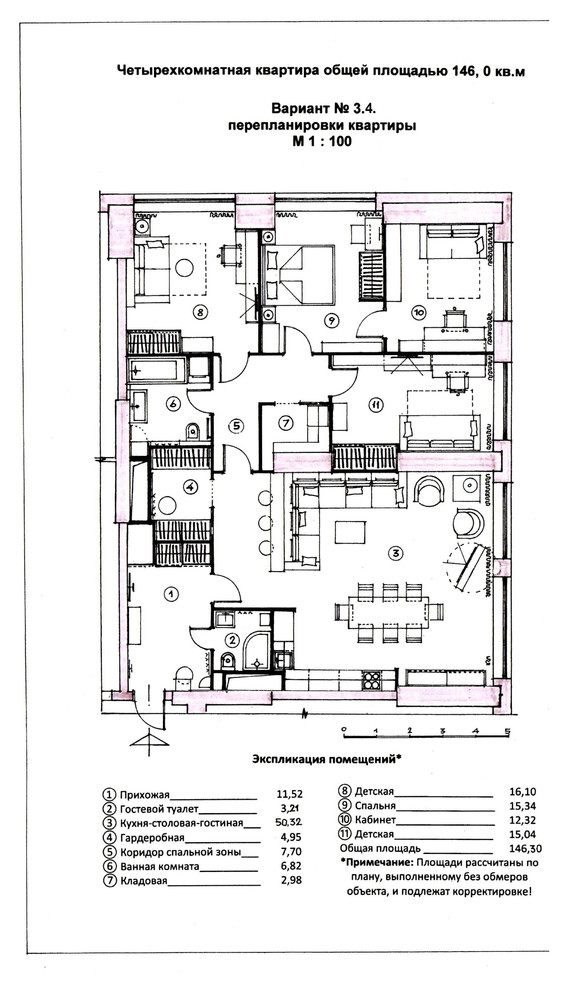
Перепланировка квартиры площадью 146 кв.м в Северном Чертаново

Другие фотографии в проекте Перепланировка квартиры площадью 146 кв.м в Северном Чертаново

Вопросы к фото 0

Задайте вопрос

Вам ответят эксперты. Пришлем уведомление, когда вам ответят

Каждому - свой угол!, Квартира с обилием вспомогательных помещений и зон, Переходный, Просто классная квартира!, Семейная пара с разнополыми детьми