logo
Пентхаус в Тбилиси

Другие фотографии в проекте Пентхаус в Тбилиси

Вопросы к фото 0

Задайте вопрос

Вам ответят эксперты. Пришлем уведомление, когда вам ответят

Контемпорари, Москва

Максим Кашин

Максим Кашин

Архитекторы

Смотреть профиль

1

отзыв

5

Рейтинг

Пентхаус в Тбилиси

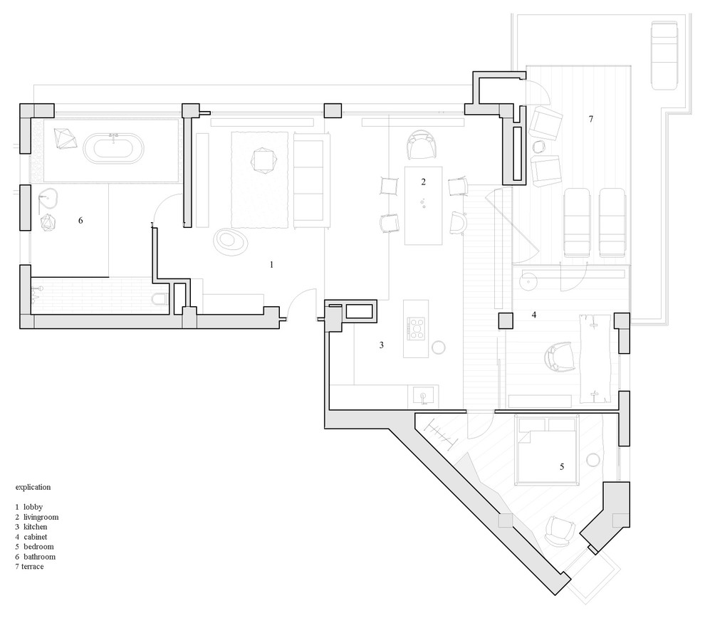
Район Мтацминда, где находится этот пентхаус, один из старейших в Тбилиси. Здесь, как говорят старожилы, невозможно заблудиться: просто идешь вниз с Мтацминды к Куре. Из гостиной - на старый Тбилиси и реку Кура, а из ванной комнаты пентхауса открывается вид на горы и фуникулёр. Основная задача была соединить чёткую геометрию минималистичного пространства, фантастические виды из панорамных окон и этнические предметы интерьера, которые владелец привез из Тайланда. Все пространство - это практически open space, для зонирования которого были использованы стеклянные перегородки. Главная сцена пентхауса - гостиная, столовая и кухня. Объединив все эти функции в одном пространстве мы смогли получить формообразующую часть пентхауса. Его визитную карточку. Когда заходишь сюда, то сразу оказываешься в самой выигрышной точке восприятия пространства и всех деталей интерьера. Большая часть предметов интерьера и мебели была разработана и воплощена нашей командой, а точечные светодиодные светильники и лампы выбрали и расположили таким образом, чтобы в вечернее время подчеркнуть стилеобразующие предметы интерьера, и не дать конкурировать с видами из панорамных окон.

Вопросы к фото 0