
Дизайнеры интерьера
5
·
10 отзывов
Однокомнатная квартира в современном стиле
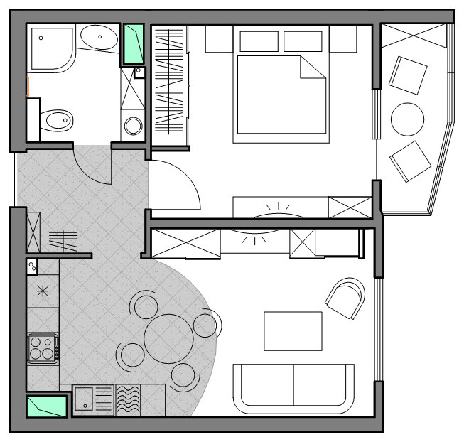
Однокомнатная квартира в Санкт-Петербурге. . Проект реализован в 2016 году. . Дизайнер Катерина Чернова / Студия Self Made Design . . Площадь квартира всего 47 кв.м. Заказчики, семейная пара, хотели светлое современное пространство с вместительными системами хранения и продуманной эргономикой. А еще на этой небольшой площади было необходимо разместить полноценную кухню, где можно не только приготовить ужин, но и угостить им гостей, гостиную с раскладывающимся диваном, системой хранения и рабочим местом. В спальне помимо кровати должен был разместиться весь гардероб заказчиков. . Все пожелания удалось реализовать без глобальной перепланировки, акцент был сделан на разработку функциональных систем хранения и максимально эффективную организацию пространства. . В объединенном пространстве кухни-гостиной главное место отведено современному угловому кухонному гарнитуру, ящики которого сделаны под потолок, это позволило разместить здесь всю необходимую технику и организовать достаточно места для хранения. Заказчики хотели визуально разделить кухню от гостиной, еще одним пожеланием был круглый стол – давняя мечта хозяйки. Зонирование достигается за счет разного напольного покрытия, в прихожей и кухни – плитка, в гостиной – паркетная доска, а сам стык имеет радиальную форму, повторяя геометрию обеденного стола. . В гостиной, кроме дивана, в нише разместилась система хранения с раздвижными фасадами, за одним из которых скрыто рабочее место, в остальных секциях полки и выкатные ящики для хранения вещей. . Заказчики не испугались холодных оттенков в интерьере: в совмещенном пространстве прихожей и кухни-гостиной на стенах декоративная штукатурка с фактурой бетона, а на полу серый керамогранит и паркет с холодной тонировкой. Мебель с белыми глянцевыми фасадами смотрится легко и не загромождает и без того небольшое пространство, а живым интерьер делает текстиль – портьеры, декоративные подушки, ковер и их лиловые, розовые, желтые и салатовые акценты. . Спальня и ванная комната оформлены в бежевой гамме. При этом хотелось, чтобы интерьер не стал скучным и невнятным, что часто случается при обильном использовании нюдовых оттенков, поэтому решено было сыграть на контрастах: бежевая декоративная штукатурка сочетает в себе матовые и глянцевые фактуры и намеренно не доходит до потолка, дозировав тем самым количество этого цвета. В изголовье кровати контрастные обои с лилиями на серебряном фоне. И продолжая тему гостиной, мебель белая и яркие акценты на текстиле: двойные шторы в лиловом и оливковом цвете и декоративные подушки с яркими принтами. . Спальню решено было не загромождать мебелью, тем более что все вещи хозяев разместились в удоб-ной гардеробной в нише, а постельные принадлежности спрятаны в коробе внутри кровати, доступ в который обеспечивает подъемный механизм для матраса. . Вся мебель была изготовлена на заказ в столярной мастерской по эскизам дизайнера. Керамическая плитка фабрик Italon и Serenissima. Декоративные подушки из коллекции Muse, разработанной студией Self Made Design. . .
Другие фотографии в проекте
Вопросы к фото 0
Задайте вопрос
Вам ответят эксперты. Пришлем уведомление, когда вам ответят
Балкон и лоджия, Контемпорари, Лоджия, Санкт-Петербург, зеленый ковролин, панорамные окна
Похожие фотографии

Собрание клубных домов «WEST GARDEN»
На фото: лоджия среднего размера в современном стиле без защиты от солнца
Бодров Максим

Собрание клубных домов «WEST GARDEN»
Идея дизайна: лоджия среднего размера в современном стиле без защиты от солнца
Бодров Максим

Ремонт лоджии
Стильный дизайн: лоджия среднего размера в современном стиле - последний тренд
Дизайн-студия "Аквариус" в Ростове-на-Дону

Проект выпускницы Geometrium School, дизайнера и куратора Мэри Никифоровой
Пример оригинального дизайна: лоджия в современном стиле
PR Geometrium school

ЖК Пять Звезд
На фото: лоджия в современном стиле с
Prosto Flat

Дизайнерский ремонт 2хкомнатной квартиры в новостройке
Свежая идея для дизайна: лоджия среднего размера в современном стиле без защиты от солнца - отличное фото интерьера
Федерация Ремонта

Квартира с видом на крыши Петербурга
Идея дизайна: лоджия среднего размера в современном стиле с навесом
Максим Максимов

Квартира в ЖК "Две эпохи"
На фото: лоджия среднего размера в современном стиле
Максим Максимов

Light midecentury apartment / Квартира с легким флером midcentury
Источник вдохновения для домашнего уюта: лоджия среднего размера в современном стиле
Максим Максимов

Двухкомнатная квартира
Пример оригинального дизайна: лоджия в современном стиле
Ольга Никитина

Двухкомнатная квартира
Идея дизайна: лоджия в современном стиле
Ольга Никитина

Alvan 25 in Sigtuna
Свежая идея для дизайна: маленькая лоджия в современном стиле с стеклянными перилами для на участке и в саду - отличное фото интерьера
LOG interior design




