
Архитекторы
5
·
10 отзывов
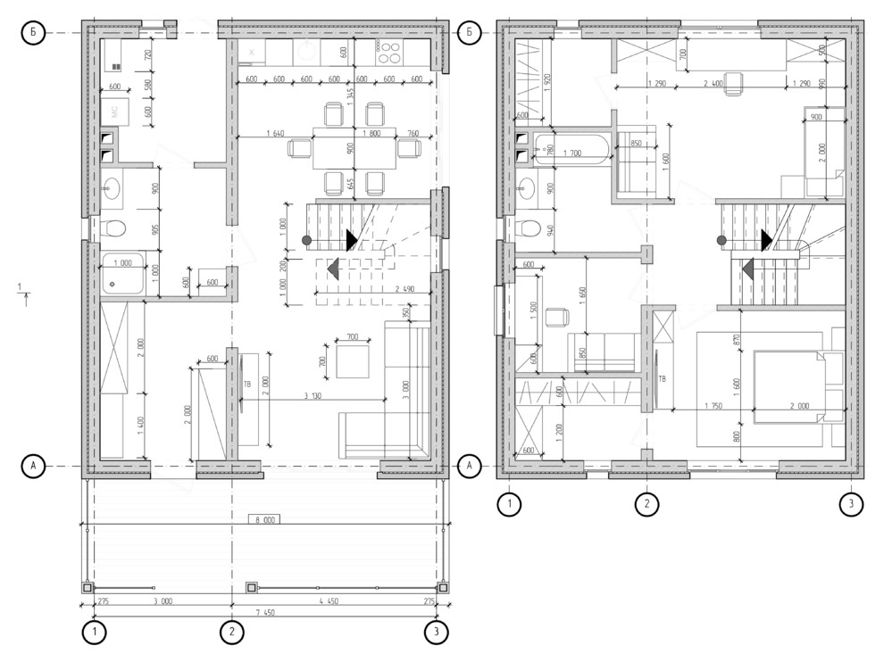
Одноэтажный дом с мансардой в г. Краснодар.
Местоположение: г. Краснодар . Общая площадь: 160 кв.м. . Особенности: Создание проекта проводилось в сжатые сроки, на момент начала проектирования уже заливался фундамент. Пространство первого этажа преимущественно свободной планировки, на мансардном этаже размещается 2 спальни. На территории сохраняется существующее строение.
Другие фотографии в проекте
Вопросы к фото 0
Задайте вопрос
Вам ответят эксперты. Пришлем уведомление, когда вам ответят
arch, architecture, brick, builring, design, house, project, Архитектура, ДизайнКраснодар, Контемпорари, Краснодар, Фасад дома, дизайн, жилойдом, здание, краснодар, проект, проектирование, строительство, фасад
Похожие фотографии

Проект средиземноморского дома в Крыму
Павел Кошарный

Дом Oἶκος в Раздолье
Андрей Карапетян
Эскизный проект: Современный загородный дом в лесу + Интерьер
Михаил Конев
Усадьба в Златоусте
Ольга Вавилова

Уютный дом в средиземноморском стиле на Черном море
Задача стояла спроектировать дом на очень крутом склоне, перепад составил более 12 метров. Нам надо было не только удобно разместить дом и решить планировочные задачи, но и организовать места отдыха, беседку и бассейн. Мы организовали рельеф террасами и постарались избежать высоких подпорных стен. Получилось уютно и атмосферно и, что немаловажно, функционально.
Александра Штукатурова

Архитектурный проект фасада кафе
Андрей Панфутов

House boat
Наталия Ставратий

Загородный дом
Светлана Захарова

Проект 372 А «Дега»
СМОТРЕТЬ ВСЮ КОЛЛЕКЦИЮ: . http://www.alfaplan.ru/catalog/group_644/group_668/
Владимир Тарасов

Проект фасада для нотариуса
Стиль- классика.
Ирина Азаева

Проект фасада для нотариуса
Стиль- классика.
Ирина Азаева

Бани и баньки из бруса, бревна и лафета
Маленькие и большие бани и сауны, из рубленного и оцилиндрованного бревна, лафета, бруса. . . ✔️ для производителей срубов . ✔️ рубщиков . ✔️ строительных компаний . ✔️ бригад мастеров . ✔️ частных лиц . ✔️ банных комплексов . ✔️ загородных баз и мест отдыха . . Состав проектов: . Архитектурные решения, Конструкции деревянные / разбрусовка / разбревновка, схемы фундаментов, стропильные конструкции, балки пола. . Спецификации и карты раскроя сруба и конструкций. . . ?️ площадь: от 23 м2 до 750 м2 . . С моим подробным проектом Вы сможете: . ? произвести точный расчет стоимости сруба, монтажа и строительства в любой строительной компании или артели; . ?️ изготовить сруб и фундамент, произвести сборку сруба и конструкций; . ? сэкономить до 25% стоимости бани за счет точных данных по раскрою сруба и выбора наилучшего предложения; . . ⏳ быстро и качественно, с соблюдением норм, принципами комфортности и эргономики!
Денис Медведев




