logo
Одноэтажный дом с мансардой в г. Краснодар.
Евгения Княжева

Евгения Княжева

Архитекторы

5

·

15 отзывов

Одноэтажный дом с мансардой в г. Краснодар.

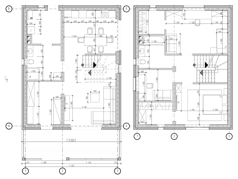
Местоположение: г. Краснодар . Общая площадь: 160 кв.м. . Особенности: Создание проекта проводилось в сжатые сроки, на момент начала проектирования уже заливался фундамент. Пространство первого этажа преимущественно свободной планировки, на мансардном этаже размещается 2 спальни. На территории сохраняется существующее строение.

Другие фотографии в проекте

Вопросы к фото 0

Задайте вопрос

Вам ответят эксперты. Пришлем уведомление, когда вам ответят