
Дизайнеры интерьера
0
НЕПРЕРЫВНОЕ ЦЕЛОЕ
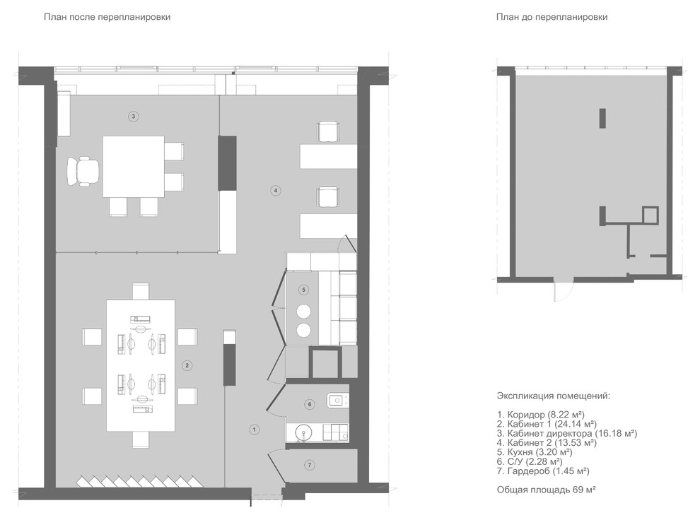
Офис любого дизайнерского или архитектурного бюро служит его визитной карточкой для клиентов – кто захочет заказать стильный дизайн офиса Киев у тех, кто не может создать его сам для себя? Студия дизайн интерьера Materia 174, безусловно, смогла отразить в интерьере своего офиса все те идеи, которые она вкладывает в свои проекты – уникальность и индивидуальность, простор и свет, тщательная проработка деталей, красота и фактура материалов, не скрытая под слоями краски и лака, эпатажная новизна и масштабность идей.
Другие фотографии в проекте
Вопросы к фото 0
Задайте вопрос
Вам ответят эксперты. Пришлем уведомление, когда вам ответят




