
Мебель и аксессуары
0
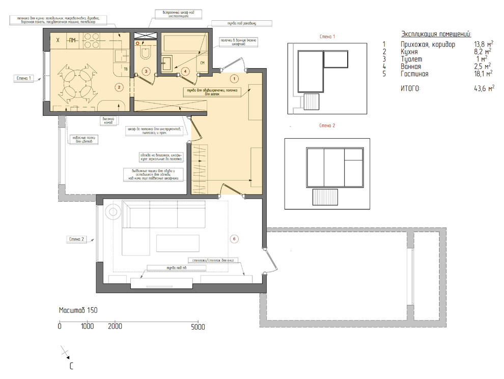
Небольшая уютная квартира на школьной, изготовление мебели под проект
Архитектор и фотограф - Ирина Веремьёва, проектирование и изготовление мебели - Фабрика Пространства
Другие фотографии в проекте
Вопросы к фото 0
Задайте вопрос
Вам ответят эксперты. Пришлем уведомление, когда вам ответят




