
Дизайнеры интерьера
0
НАЧАЛО ВЗРОСЛОЙ ЖИЗНИ
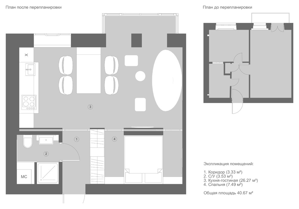
Когда девушке 16, она чувствует себя по-настоящему взрослой. . Впереди студенческие годы, новые знакомства, путешествия, влюбленности и впечатления. Начинается самостоятельная жизнь, которая обещает быть прекрасной. Перед нами стала задача создать гармоничный мир. . На диване удобно читать любимые книги, смотреть сериалы или же расслабляться после велопрогулок. Четыре стула намекают на ночные девичьи посиделки и ужины с друзьями. А из панорамных окон видны большие мечты. . . Квартира вдохновляет своим комфортом. . Мы специально приподняли кровать, чтобы сделать акцент на легкости характера хозяйки. И, наконец, принт на зеркале в ванной создан, чтобы всегда напоминать девушке о ее красоте. В таком доме хочется быть собой, взрослеть и всегда стремиться к лучшему. . Мы хотим дать ей крылья для этой самостоятельной жизни. Свое место, где она может строить большие планы и ставить безграничные цели. Где ей легко быть наедине с собой, и куда она хочет привести самых близких. Место, которое растет вместе с ней.
Другие фотографии в проекте
Вопросы к фото 0
Задайте вопрос
Вам ответят эксперты. Пришлем уведомление, когда вам ответят
Похожие фотографии

Apartments Neva Towers 1
Пример оригинального дизайна: гостиная комната среднего размера в современном стиле с бежевыми стенами, светлым паркетным полом, бежевым полом, многоуровневым потолком, панелями на части стены и акцентной стеной
Вадим Мартынов Екатерина Гатилова

Частная резиденция DRR
Свежая идея для дизайна: идея дизайна в современном стиле - отличное фото интерьера
Portner Architects

Вавилова 4
Стильный дизайн: гостиная комната в стиле неоклассика (современная классика) - последний тренд
Ира Носова

FESTIVAL FLAT
Пример оригинального дизайна: открытая, объединенная гостиная комната среднего размера, в белых тонах с отделкой деревом в современном стиле с белыми стенами, паркетным полом среднего тона, мультимедийным центром и коричневым полом
Екатерина

Гостиная
Пример оригинального дизайна: гостиная комната в современном стиле с коричневым диваном, паркетным полом среднего тона и потолком из вагонки без камина
Александра Протасова

Квартира ул Тверская
На фото: гостиная комната в стиле неоклассика (современная классика) с белыми стенами и многоуровневым потолком с
Олег Михайлов архитектор-дизайнер

Пентхаус в Краснодаре
На фото: идея дизайна в современном стиле с
Денис Мурый

Квартира в Палевском жилмассиве
Идея дизайна: открытая, объединенная гостиная комната среднего размера в скандинавском стиле с белыми стенами, полом из винила, коричневым полом и кирпичными стенами без телевизора
Дмитрий Дубровский

Зал
Источник вдохновения для домашнего уюта: гостиная комната в современном стиле с бежевыми стенами, светлым паркетным полом и бежевым полом
Дмитрий Галаганов

Квартира в ЖК "Василеостровский квартал"
Пример оригинального дизайна: гостиная комната в современном стиле с паркетным полом среднего тона и коричневым полом
Екатерина Савенко

Дом, умный дом(фотографии спальни)
Источник вдохновения для домашнего уюта: идея дизайна в современном стиле
Архитектурная студия Астар проект

Гостиная
Свежая идея для дизайна: маленькая открытая, объединенная гостиная комната в современном стиле с серыми стенами и серым полом без телевизора для на участке и в саду - отличное фото интерьера
Ольга Васильева




