Другие фотографии в проекте Минималистичная скульптура
Ещё 13 фото
Сначала новые
Вам ответят эксперты. Пришлем уведомление, когда вам ответят
Алена Прядко
Дизайнеры интерьера
0
отзывов
Рейтинг
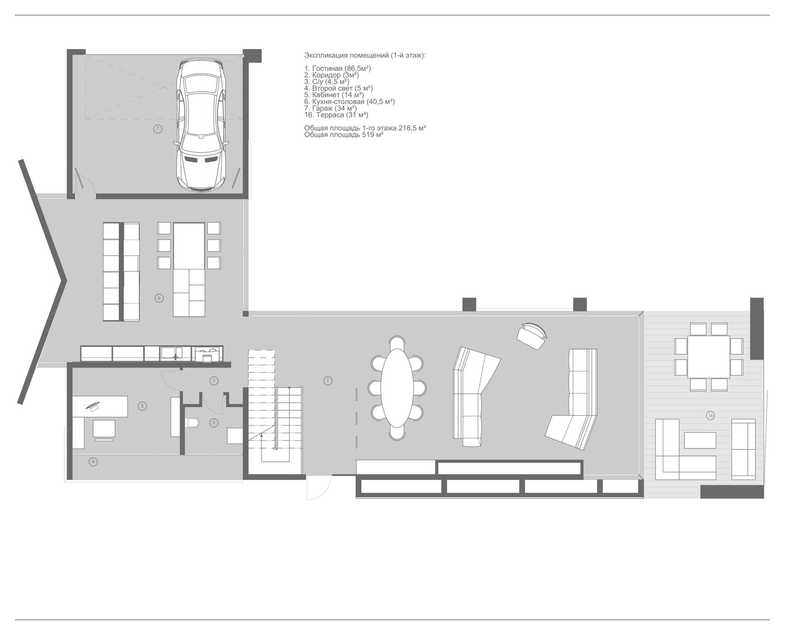
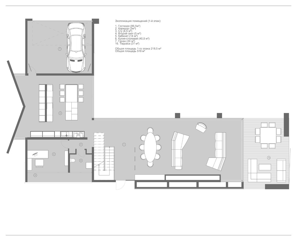
Гостиная