
Архитекторы
5
·
5 отзывов
Mansarda Loft
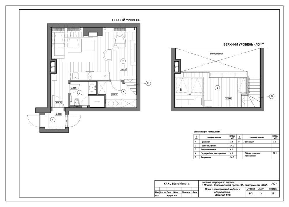
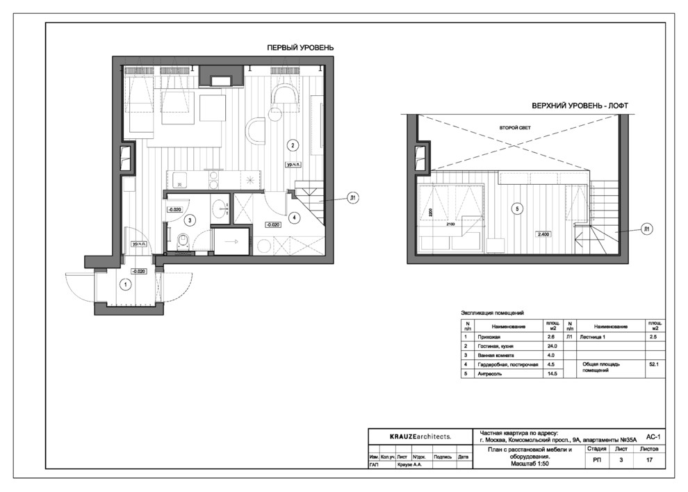
Квартира для постоянного проживания с пешеходной доступностью до работы и инфраструктуры центра города. Необходимо было создать имиджевый проект интерьера комфортный для насыщенной жизни холостяка. Стиль – современный скандинавский минимализм. . Старое здание подверглось комплексной реконструкции с надстройкой мансардного этажа, в котором располагается наш объект. Из мансардных окон открывается отличный вид в сторону улицы Льва Толстого, комплекса «Красная Роза», улицы Остоженка и Храма Христа Спасителя. Апартаменты очень компактные, высота антресоли минимальна, поэтому планировку потребовалось оптимизировать и выверить до 10мм. Такая погрешность более характерна для мебельного производства, но нам удалось реализовать этот принцип во всем объеме апартаментов. . При организации пространства за основу были взяты высокие нормативные требования к функциональности и оснащенности помещений. Кухня является центральным элементом пространства гостиной на первом уровне апартаментов, она сочетает все современные требования к оснащению компактной кухни и аскетичный минимализм. Напротив кухни установлен биокамин, подоконники и экраны радиаторов выполнены из мдф, шпонированного дубом и позволяют сидеть на них и выходить на кровлю. Лестница компактна, но эргономична в использовании. Под лестницей расположена гардеробная комната с постирочным пространством. Ванная – это отдельный мир в этих апартаментах, в небольшом пространстве мы разместили все необходимые функции и просторную душевую кабину с разными системами гидротерапии. На антресоли расположена спальня и компактное рабочее пространство, в парапете антресоли размещены выдвижные ящики для хранения. . Мы разработали и изготовили с российской мебельной компанией индивидуальную встроенную мебель, кухню, межкомнатные двери, журнальный стол и тумбу под тв. Мягкая мебель итальянская. Смесители и сантехника американская. Массивная доска на полу и в двутавровых балках кровли американская. .
Другие фотографии в проекте
Вопросы к фото 0
Задайте вопрос
Вам ответят эксперты. Пришлем уведомление, когда вам ответят
$$, Attribute furniture, DeleCuona, EbonyandCo, Gervasoni, Mansarda Loft, Visual Comfort, black and white, exposed brick, loft, mansarda, meridiani, oak floor, scandinavian loft, scandinavian minimal, white brick walls, Белый, В стиле лофт, Дизайн малых пространств, Индустриальный, Маленький, Минималистичные пространства, Москва, Открытая кирпичная кладка, Светлая паркетная доска, Солнечные мансардные окна/зенитные фонари, Спальня, Элегантные хозяйские спальни
Похожие фотографии

Студия с мезонином на Смоленском бульварес
Идея дизайна: маленькая спальня на антресоли в стиле лофт с белыми стенами для на участке и в саду
Елена Проскурина

Сад эрмитаж
Небольшая квартир с видом на сад-эрмитаж.
Александра Останкова

Сад эрмитаж
Небольшая квартир с видом на сад-эрмитаж.
Александра Останкова

Сад эрмитаж
Небольшая квартир с видом на сад-эрмитаж.
Александра Останкова

однокомнатная квартира для семьи с малышом
Идея дизайна: маленькая хозяйская спальня в современном стиле с белыми стенами, светлым паркетным полом и кроватью в нише без камина для на участке и в саду
Нина Хелая

2-х уровневая квартира в немецком доме
Стильный дизайн: маленькая хозяйская спальня в белых тонах с отделкой деревом на мансарде в стиле лофт с белыми стенами, полом из ламината, коричневым полом, балками на потолке и кирпичными стенами для на участке и в саду - последний тренд
Мария Бойчук

ЖК «Новые Черемушки», французская классика, 100 кв.м.
На фото: маленькая хозяйская спальня в светлых тонах, в белых тонах с отделкой деревом в стиле неоклассика (современная классика) с белыми стенами, светлым паркетным полом и бежевым полом для на участке и в саду с
Студия современного дизайна интерьера Royal Fusion

ЖК «Новые Черемушки», французская классика, 100 кв.м.
Стильный дизайн: маленькая хозяйская спальня в светлых тонах, в белых тонах с отделкой деревом в стиле неоклассика (современная классика) с белыми стенами, светлым паркетным полом и бежевым полом для на участке и в саду - последний тренд
Студия современного дизайна интерьера Royal Fusion

ЖК «Новые Черемушки», французская классика, 100 кв.м.
Пример оригинального дизайна: маленькая хозяйская спальня в светлых тонах, в белых тонах с отделкой деревом в стиле неоклассика (современная классика) с белыми стенами, светлым паркетным полом и бежевым полом для на участке и в саду
Студия современного дизайна интерьера Royal Fusion

ЖК «Новые Черемушки», французская классика, 100 кв.м.
Идея дизайна: маленькая хозяйская спальня в светлых тонах, в белых тонах с отделкой деревом в стиле неоклассика (современная классика) с белыми стенами, светлым паркетным полом и бежевым полом для на участке и в саду
Студия современного дизайна интерьера Royal Fusion

ЖК «Новые Черемушки», французская классика, 100 кв.м.
На фото: маленькая хозяйская спальня в светлых тонах, в белых тонах с отделкой деревом в стиле неоклассика (современная классика) с белыми стенами, светлым паркетным полом и бежевым полом для на участке и в саду
Студия современного дизайна интерьера Royal Fusion

ЖК «Новые Черемушки», французская классика, 100 кв.м.
Свежая идея для дизайна: маленькая хозяйская спальня в светлых тонах, в белых тонах с отделкой деревом в стиле неоклассика (современная классика) с белыми стенами, светлым паркетным полом и бежевым полом для на участке и в саду - отличное фото интерьера
Студия современного дизайна интерьера Royal Fusion




