
Дизайнеры интерьера
5
·
10 отзывов
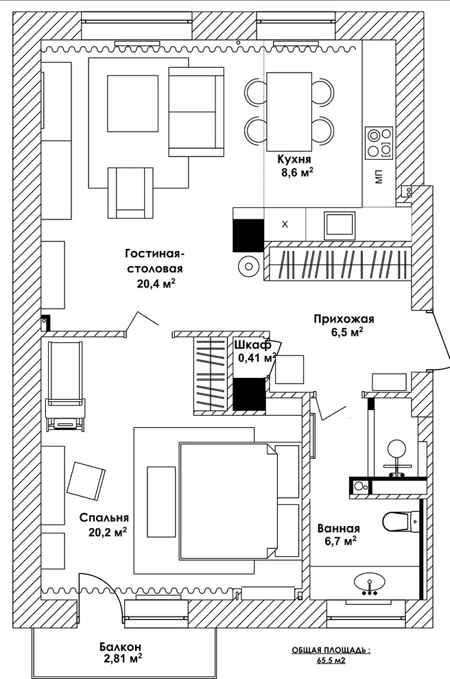
Маленькая квартира в старом районе Москвы
Квартира для молодой семейной пары. В старом Московском доме,в районе Дубровка. Планировка изначально была очень необычная - в ванной комнате имеется окно -раньше там была кухня... Максимально учтены потребности молодых - просторная гостиная для приема гостей, современная душевая кабина и оставлено местечко в спальне для будущего малыша.
Другие фотографии в проекте
Вопросы к фото 0
Задайте вопрос
Вам ответят эксперты. Пришлем уведомление, когда вам ответят




