
5
·
10 отзывов
Ленинградская классика
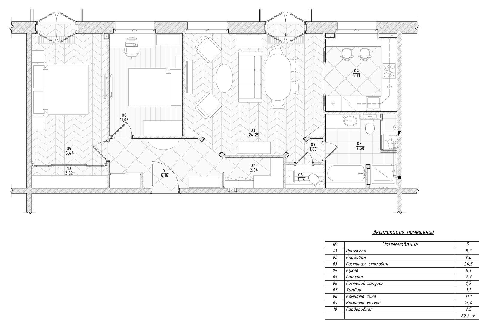
Архитектурные решения. . . Квартира восточной ориентации в историческом районе Санкт-Петербурга для семейной пары с ребенком-подростком. . . В исходной планировке – трехкомнатная квартира коридорного типа с «нарезкой» пространств вдоль узкого неосвещенного коридора. Газоснабжение, водонагреватель. . . Задачи проекта: создание четко вымеренных функциональных пространств для жизни, удобное сообщение между комнатами, организация общего пространства с диванно-телевизионной зоной, столовой и доступом к кухне. Так же обязательно наличие двуспальных кроватей в личных комнатах, второго санузла и необходимых систем хранения. Требуется размещение ванной и душевой кабины в санузле с прилегающими нишами для хранения. Необходимо уделить внимание аудиосистеме в гостиной. Проект должен соответствовать действующим нормам. . . Решение: Все исходные перегородки были полностью демонтированы. Принято решение организовать личные пространства слева от входа в квартиру, общесемейные – справа с сообщением посредством широкой освещенной прихожей. Она позволяет компактно сконцентрировать входную зону квартиры, при этом оставив место для передвижения. Из прихожей открывается вид на общие пространства: гостиную и обеденную зоны. Кухня и гостиная взаимосообщаются; при необходимости пространство кухни может быть изолировано посредством двойных раздвижных дверей в пенал. Кухонная зона удобна и эргономична за счет трехсторонней ориентации комплекта мебели. Рабочая поверхность вдоль фасадной стены может быть использована как стол для завтраков. Основной санузел расширен за счет пространства бывшего коридора, на месте которого так же появился дополнительный санузел и кладовая с доступом из прихожей. Личное пространство поровну разделено по ширине на 2 комнаты, в хозяйской комнате организован глубокий встроенный шкаф. .
Другие фотографии в проекте
Вопросы к фото 0
Задайте вопрос
Вам ответят эксперты. Пришлем уведомление, когда вам ответят




