
Архитекторы
0
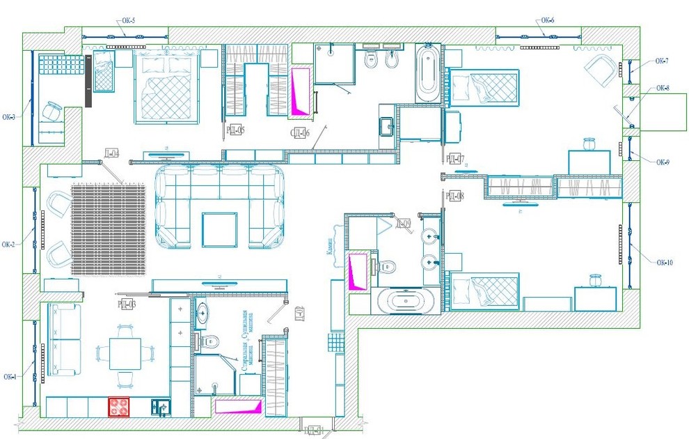
Квартира в ЖК "Дом на Щукинской"
Проект и реализация 2015 года. Площадь квартиры 148 м2. Стиль - современная классика. Квартира рассчитана на проживание семьи с двумя маленькими детьми. В перечне помещений: студия, кухня, мастер спальня со своей гардеробной и су, две детские, детский санузел, гостевой санузел и небольшая кладовая. В квартире разработано достаточно большое количество систем хранения, что просто необходимо в семье с детьми. В центре расположена просторная студия, что очень удобно для общения всей семьи. По просьбе заказчиков кухня отделена от студии раздвижными перегородками с кассетой в стене. Всегда есть возможность одним движением руки уединиться или же увеличить площадь помещения студии за счет кухни до 62 кв.метров.
Другие фотографии в проекте
Вопросы к фото 0
Задайте вопрос
Вам ответят эксперты. Пришлем уведомление, когда вам ответят
artteam, Гардеробная, Москва, Традиционный, арттим, гардероб, дизайн, жк, интерьер
Похожие фотографии

Парижские апартаменты в московской «сталинке»
Марина Ярмаркина/ Amalgama interior
Квартира для двоих: современное зонирование и тёплая палитра на 103 м²
Domeo 🏆 Лучшая компанию по ремонту МСК
ЖК Наследие
REDI ремонт и дизайн

Дизайн интерьера спальни 19,7 м²
Алексей Телеш

Автоматический биокамин Smart Fire A5 с вытяжным зонтом
Арсен К.

Дом в Сочи
Оксана Бродовская

Дом в Сочи
Оксана Бродовская

Дом в Сочи
Оксана Бродовская

Oh my hair!
Владислав Терехов

Oh my hair!
Владислав Терехов

Клевер парк
Оксана Бродовская

Современный интерьер для молодой семьи в квартире 36 м²
Современная квартира с продуманной эргономикой и чистой планировкой. Убрали лишние выступы, расширили полезную площадь, оптимизировали разводку инженерии. Все решения — на стыке функциональности и эстетики: от теплых полов в нужных зонах до встроенной мебели и экономии без потери качества. Интерьер получился лёгким, удобным и честным — с фокусом на комфорт, ремонтопригодность и долгий срок службы. . .
Domeo 🏆 Лучшая компанию по ремонту МСК




