
Архитекторы
0
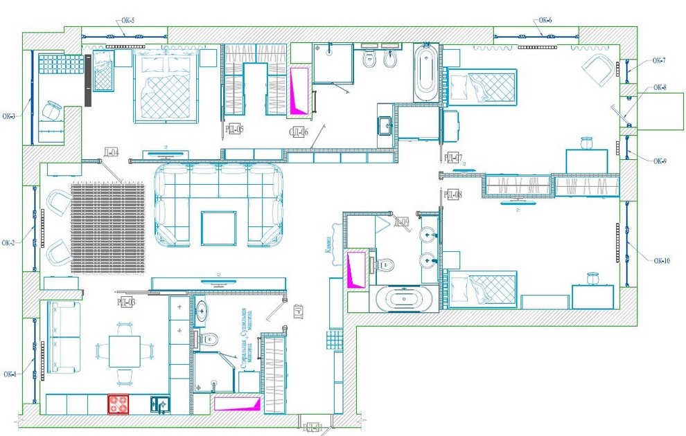
Квартира в ЖК "Дом на Щукинской"
Проект и реализация 2015 года. Площадь квартиры 148 м2. Стиль - современная классика. Квартира рассчитана на проживание семьи с двумя маленькими детьми. В перечне помещений: студия, кухня, мастер спальня со своей гардеробной и су, две детские, детский санузел, гостевой санузел и небольшая кладовая. В квартире разработано достаточно большое количество систем хранения, что просто необходимо в семье с детьми. В центре расположена просторная студия, что очень удобно для общения всей семьи. По просьбе заказчиков кухня отделена от студии раздвижными перегородками с кассетой в стене. Всегда есть возможность одним движением руки уединиться или же увеличить площадь помещения студии за счет кухни до 62 кв.метров.
Другие фотографии в проекте
1 раз сохранено в статьи и альбомы идей:
Добавил(-а) в альбом: гостиная с перегородкой
Вопросы к фото 0
Задайте вопрос
Вам ответят эксперты. Пришлем уведомление, когда вам ответят




