
Дизайнеры интерьера
0
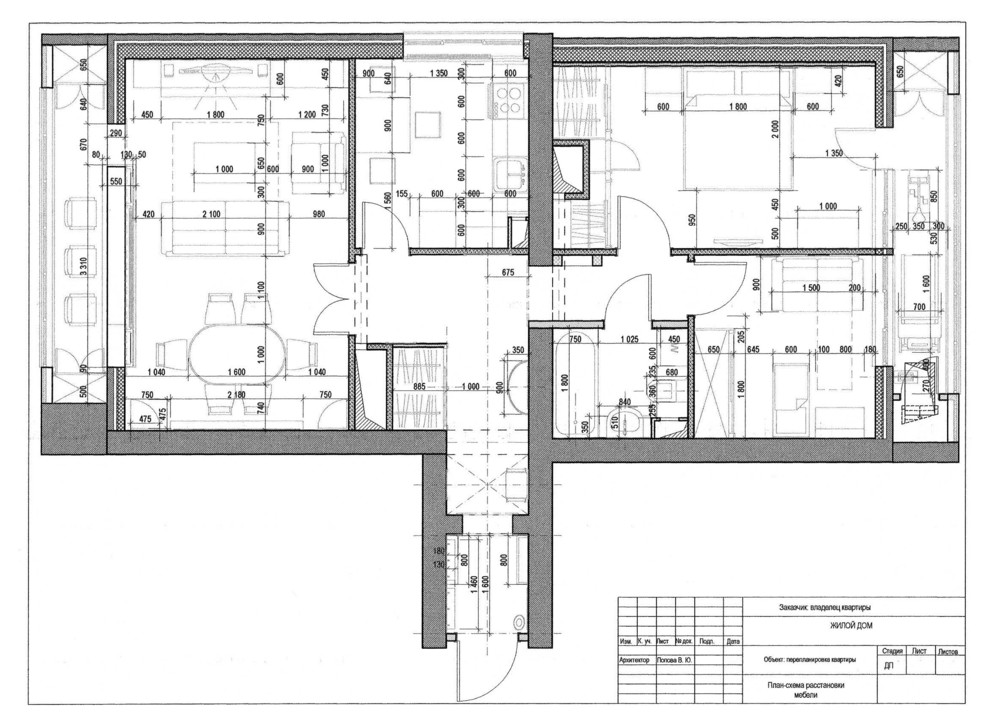
Квартира в типовом панельном доме серии П-68
3ех комнатная квартира в типовом панельном доме серии П-68, общая площадь 85 м2, высота потолков 2,47. Интерьер был сделан в 2007 году. Кто бы тогда мог подумать, что в панельном доме можно сделать сдержанный интерьер с элементами классики.
Другие фотографии в проекте
Вопросы к фото 0
Задайте вопрос
Вам ответят эксперты. Пришлем уведомление, когда вам ответят

