
Дизайнеры интерьера
4.75
·
4 отзыва
Квартира в стиле Прованс
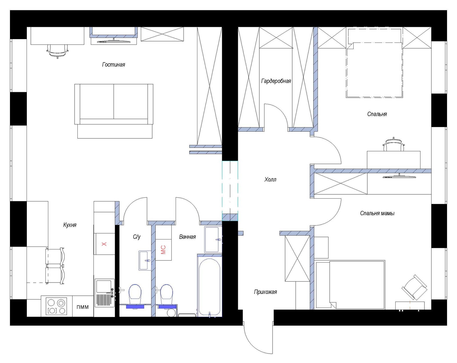
Дом, в котором находится квартира был построен пленными немцами в 40-х годах. Небольшой, двухэтажный, он уютно устроился во дворе, окружённом современным жильём. . Площадь квартиры составляет 88 кв.м. Она состоит как-бы из двух частей, разделённых несущей стеной. . Жильё предназначено для самой заказчицы-молодой женщины и её мамы. . Главной задачей было: предусмотреть максимальное количество мест для хранения и вписаться в небольшой бюджет. . После перепланировки удалось выделить место для гардеробной. Наполнение сделали из системы ИКЕА Пакс. Спальные комнаты получились небольшими, но функциональными. В одной из них кровать-трансформер решает вопрос свободного пространства, и на день превращается в простой по форме диванчик. Шкаф в гостиной имеет две вместительные выдвижные секции для книг, которые скрываются за зеркальным фасадом. . Зона кухни и гостиной разделена декоративной раздвижной перегородкой с матовыми стёклами. А зона ванной и с/у скрыта за дверями «невидимками». . . Портал в несущей стене было решено обрамить наличником и деревянными панелями. А так как сам проём ниже остальных проемов квартиры, над ним появился декоративный элемент, добавляющий ему «роста». . Ещё одной мечтой хозяйки был камин. Он занял центральное место в гостиной. Для доступа и обслуживания были сделаны зеркальные съемные панели, обрамляющие топку. . В каждой комнате присутствуют птички в том или ином предмете интерьера. Заказчица любит их всей душой. Покупает разный декор с их участием. . Мы называем этот интерьер «Прованс», который возник в процессе реализации, в начале пути проект был ближе к современной классике. Большая часть мебели была выполнена по эскизам в мастерской «Фабрика Ладыгина», это и задало тон интерьеру. . Множество светлых оттенков и оттенков зеленого делают интерьер свежим и легким. . Реализация заняла два с половиной года, так как проект был без авторского надзора, наполнение интерьера происходило поэтапно, по мере поступления бюджета. . Пол- массив дуба. В с/у керамогранит Codicer Heritage. В ванной плитка Peronda Provence. Фотограф Сергей Красюк. .
Другие фотографии в проекте
Вопросы к фото 0
Задайте вопрос
Вам ответят эксперты. Пришлем уведомление, когда вам ответят




