
Дизайнеры интерьера
4.75
·
4 отзыва
Квартира в стиле Прованс
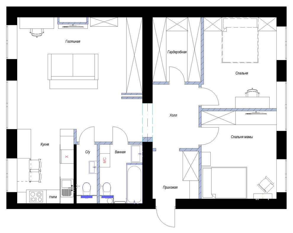
Дом, в котором находится квартира был построен пленными немцами в 40-х годах. Небольшой, двухэтажный, он уютно устроился во дворе, окружённом современным жильём. . Площадь квартиры составляет 88 кв.м. Она состоит как-бы из двух частей, разделённых несущей стеной. . Жильё предназначено для самой заказчицы-молодой женщины и её мамы. . Главной задачей было: предусмотреть максимальное количество мест для хранения и вписаться в небольшой бюджет. . После перепланировки удалось выделить место для гардеробной. Наполнение сделали из системы ИКЕА Пакс. Спальные комнаты получились небольшими, но функциональными. В одной из них кровать-трансформер решает вопрос свободного пространства, и на день превращается в простой по форме диванчик. Шкаф в гостиной имеет две вместительные выдвижные секции для книг, которые скрываются за зеркальным фасадом. . Зона кухни и гостиной разделена декоративной раздвижной перегородкой с матовыми стёклами. А зона ванной и с/у скрыта за дверями «невидимками». . . Портал в несущей стене было решено обрамить наличником и деревянными панелями. А так как сам проём ниже остальных проемов квартиры, над ним появился декоративный элемент, добавляющий ему «роста». . Ещё одной мечтой хозяйки был камин. Он занял центральное место в гостиной. Для доступа и обслуживания были сделаны зеркальные съемные панели, обрамляющие топку. . В каждой комнате присутствуют птички в том или ином предмете интерьера. Заказчица любит их всей душой. Покупает разный декор с их участием. . Мы называем этот интерьер «Прованс», который возник в процессе реализации, в начале пути проект был ближе к современной классике. Большая часть мебели была выполнена по эскизам в мастерской «Фабрика Ладыгина», это и задало тон интерьеру. . Множество светлых оттенков и оттенков зеленого делают интерьер свежим и легким. . Реализация заняла два с половиной года, так как проект был без авторского надзора, наполнение интерьера происходило поэтапно, по мере поступления бюджета. . Пол- массив дуба. В с/у керамогранит Codicer Heritage. В ванной плитка Peronda Provence. Фотограф Сергей Красюк. .
Другие фотографии в проекте
Вопросы к фото 3
Изосова Татьяна
6 л.
Виолетта Касымов
7 л.
виолетта
Изосова Татьяна
6 л.
Александра
7 л.
Классная прихожая!!!
Изосова Татьяна
6 л.
Задайте вопрос
Вам ответят эксперты. Пришлем уведомление, когда вам ответят
Белый, Грязевая зона / постирочная у входа, Москва, Однопольная дверь, Потолок с нишей/потолок с подиумом, Прихожая, Прованс, Серый, Традиционный, зеркальная входная дверь, квартира в стиле прованс, колокольчик над дверью, прихожая, французский стиль, шебби-шик
Похожие фотографии

Ремонт прихожей
Свежая идея для дизайна: маленький тамбур со шкафом для обуви в современном стиле с серыми стенами, полом из керамической плитки, одностворчатой входной дверью, белой входной дверью и серым полом для на участке и в саду - отличное фото интерьера
Дизайн-студия "Аквариус" в Ростове-на-Дону

Ремонт прихожей
Стильный дизайн: маленький тамбур со шкафом для обуви в современном стиле с серыми стенами, полом из керамической плитки, одностворчатой входной дверью, белой входной дверью и серым полом для на участке и в саду - последний тренд
Дизайн-студия "Аквариус" в Ростове-на-Дону

Ремонт прихожей
На фото: маленький тамбур со шкафом для обуви в современном стиле с серыми стенами, полом из керамической плитки, одностворчатой входной дверью, белой входной дверью и серым полом для на участке и в саду
Дизайн-студия "Аквариус" в Ростове-на-Дону

Ремонт прихожей
На фото: маленький тамбур со шкафом для обуви в современном стиле с серыми стенами, полом из керамической плитки, одностворчатой входной дверью, белой входной дверью и серым полом для на участке и в саду с
Студия дизайна Аквариус

Ремонт прихожей
Источник вдохновения для домашнего уюта: маленький тамбур со шкафом для обуви в современном стиле с серыми стенами, полом из керамической плитки, одностворчатой входной дверью, белой входной дверью и серым полом для на участке и в саду
Студия дизайна Аквариус

Ремонт прихожей
Идея дизайна: маленький тамбур со шкафом для обуви в современном стиле с серыми стенами, полом из керамической плитки, одностворчатой входной дверью, белой входной дверью и серым полом для на участке и в саду
Студия дизайна Аквариус

Ремонт прихожей
На фото: маленький тамбур со шкафом для обуви в современном стиле с серыми стенами, полом из керамической плитки, одностворчатой входной дверью, белой входной дверью и серым полом для на участке и в саду с
Аквариус Дизайн и ремонт квартир

Ремонт прихожей
Пример оригинального дизайна: маленький тамбур со шкафом для обуви в современном стиле с серыми стенами, полом из керамической плитки, одностворчатой входной дверью, белой входной дверью и серым полом для на участке и в саду
Аквариус Дизайн и ремонт квартир

Ремонт прихожей
На фото: маленький тамбур со шкафом для обуви в современном стиле с серыми стенами, полом из керамической плитки, одностворчатой входной дверью, белой входной дверью и серым полом для на участке и в саду с
Аквариус Дизайн и ремонт квартир

Ремонт прихожей
Свежая идея для дизайна: тамбур среднего размера в скандинавском стиле с серыми стенами, полом из ламината, одностворчатой входной дверью, белой входной дверью и бежевым полом - отличное фото интерьера
Дизайн-студия "Аквариус" в Ростове-на-Дону

Ремонт прихожей
Источник вдохновения для домашнего уюта: тамбур среднего размера в скандинавском стиле с серыми стенами, полом из ламината, одностворчатой входной дверью, белой входной дверью и бежевым полом
Дизайн-студия "Аквариус" в Ростове-на-Дону

Ремонт прихожей
Стильный дизайн: тамбур среднего размера в скандинавском стиле с серыми стенами, полом из ламината, одностворчатой входной дверью, белой входной дверью и бежевым полом - последний тренд
Дизайн-студия "Аквариус" в Ростове-на-Дону





Татьяна Панина
6 л.
Где купить или заказать такой шкаф?