
Дизайнеры интерьера
4.75
·
4 отзыва
Квартира в стиле Прованс
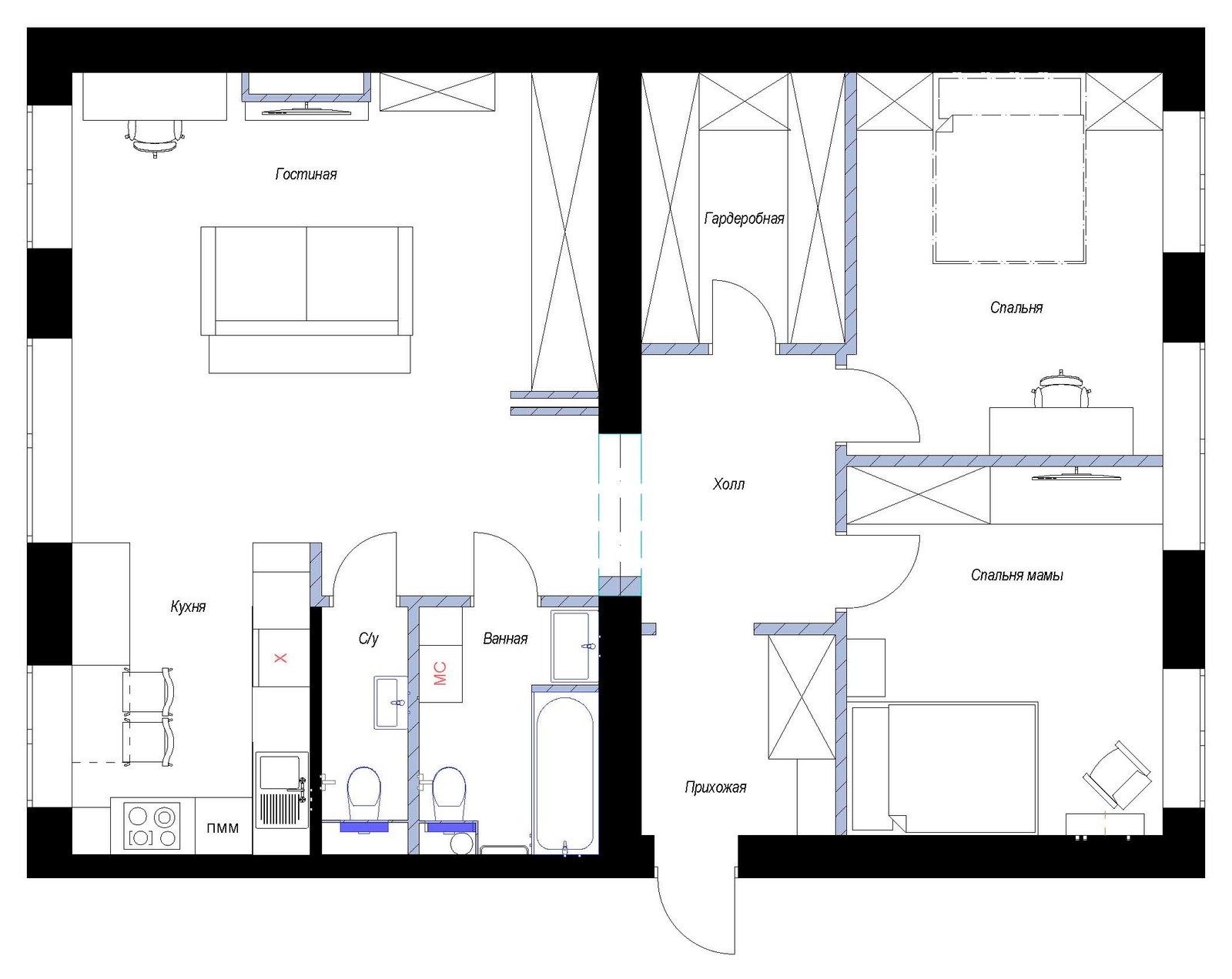
Дом, в котором находится квартира был построен пленными немцами в 40-х годах. Небольшой, двухэтажный, он уютно устроился во дворе, окружённом современным жильём. . Площадь квартиры составляет 88 кв.м. Она состоит как-бы из двух частей, разделённых несущей стеной. . Жильё предназначено для самой заказчицы-молодой женщины и её мамы. . Главной задачей было: предусмотреть максимальное количество мест для хранения и вписаться в небольшой бюджет. . После перепланировки удалось выделить место для гардеробной. Наполнение сделали из системы ИКЕА Пакс. Спальные комнаты получились небольшими, но функциональными. В одной из них кровать-трансформер решает вопрос свободного пространства, и на день превращается в простой по форме диванчик. Шкаф в гостиной имеет две вместительные выдвижные секции для книг, которые скрываются за зеркальным фасадом. . Зона кухни и гостиной разделена декоративной раздвижной перегородкой с матовыми стёклами. А зона ванной и с/у скрыта за дверями «невидимками». . . Портал в несущей стене было решено обрамить наличником и деревянными панелями. А так как сам проём ниже остальных проемов квартиры, над ним появился декоративный элемент, добавляющий ему «роста». . Ещё одной мечтой хозяйки был камин. Он занял центральное место в гостиной. Для доступа и обслуживания были сделаны зеркальные съемные панели, обрамляющие топку. . В каждой комнате присутствуют птички в том или ином предмете интерьера. Заказчица любит их всей душой. Покупает разный декор с их участием. . Мы называем этот интерьер «Прованс», который возник в процессе реализации, в начале пути проект был ближе к современной классике. Большая часть мебели была выполнена по эскизам в мастерской «Фабрика Ладыгина», это и задало тон интерьеру. . Множество светлых оттенков и оттенков зеленого делают интерьер свежим и легким. . Реализация заняла два с половиной года, так как проект был без авторского надзора, наполнение интерьера происходило поэтапно, по мере поступления бюджета. . Пол- массив дуба. В с/у керамогранит Codicer Heritage. В ванной плитка Peronda Provence. Фотограф Сергей Красюк. .
Другие фотографии в проекте
Вопросы к фото 0
Задайте вопрос
Вам ответят эксперты. Пришлем уведомление, когда вам ответят
Integrated, Белый, Гладкий фасад, Керамогранит, Комбинированный, Москва, Подвесной, Подсветка у зеркала/освещение тумбы, Серый, Синий, Традиционный, Туалет, санузел, туалет
Похожие фотографии

Однокомнатная квартира для девушки 37,5 м2
На фото: туалет среднего размера: освещение в современном стиле с плоскими фасадами, фасадами цвета дерева среднего тона, инсталляцией, разноцветной плиткой, керамогранитной плиткой, серыми стенами, полом из керамогранита, монолитной раковиной, столешницей из искусственного камня, серым полом, черной столешницей и напольной тумбой
Анастасия Спирина

Беговая 5 (120 м/кв)
На фото: маленький туалет в классическом стиле с плоскими фасадами, белыми фасадами, инсталляцией, серой плиткой, керамогранитной плиткой, серыми стенами, полом из керамогранита, подвесной раковиной, серым полом, подвесной тумбой и многоуровневым потолком для на участке и в саду с
ERK remont

Вилла на побережье Черного моря
Свежая идея для дизайна: большой туалет: освещение в стиле неоклассика (современная классика) с белыми фасадами, инсталляцией, разноцветной плиткой, керамогранитной плиткой, серыми стенами, полом из керамогранита, монолитной раковиной, столешницей из искусственного камня, серым полом, белой столешницей и подвесной тумбой - отличное фото интерьера
Александр Гигилев

Квартира для молодой семьи
На фото: маленький туалет с плоскими фасадами, белыми фасадами, инсталляцией, разноцветной плиткой, керамогранитной плиткой, бежевыми стенами, полом из керамогранита, подвесной раковиной и серым полом для на участке и в саду
Андрей Быков

Квартира для молодой семьи
Пример оригинального дизайна: маленький туалет с плоскими фасадами, белыми фасадами, инсталляцией, разноцветной плиткой, керамогранитной плиткой, бежевыми стенами, полом из керамогранита, подвесной раковиной и серым полом для на участке и в саду
Андрей Быков

Номер в апарт отеле на Вознесенском проспекте
Свежая идея для дизайна: маленький туалет в современном стиле с плоскими фасадами, белыми фасадами, инсталляцией, бежевой плиткой, керамогранитной плиткой, бежевыми стенами, полом из керамогранита, монолитной раковиной, столешницей из искусственного камня, бежевым полом, белой столешницей и подвесной тумбой для на участке и в саду - отличное фото интерьера
Нана Кобахидзе

Камень внизу, дерево вверху.
Пример оригинального дизайна: туалет среднего размера: освещение в современном стиле с плоскими фасадами, белыми фасадами, инсталляцией, серой плиткой, керамогранитной плиткой, серыми стенами, полом из керамогранита, накладной раковиной, столешницей из искусственного камня, серым полом, белой столешницей, подвесной тумбой и деревянными стенами
Алексей ТИХИЙ

Камень внизу, дерево вверху.
Источник вдохновения для домашнего уюта: туалет среднего размера: освещение в современном стиле с плоскими фасадами, белыми фасадами, инсталляцией, серой плиткой, керамогранитной плиткой, серыми стенами, полом из керамогранита, накладной раковиной, столешницей из искусственного камня, серым полом, белой столешницей, подвесной тумбой и деревянными стенами
Алексей ТИХИЙ

Камень внизу, дерево вверху.
Идея дизайна: туалет среднего размера: освещение в современном стиле с плоскими фасадами, белыми фасадами, инсталляцией, серой плиткой, керамогранитной плиткой, серыми стенами, полом из керамогранита, накладной раковиной, столешницей из искусственного камня, серым полом, белой столешницей, подвесной тумбой и деревянными стенами
Алексей ТИХИЙ

Москва, ул. Винокурова - ремонт санузлов в квартире панельного дома
Пример оригинального дизайна: туалет среднего размера: освещение в морском стиле с плоскими фасадами, белыми фасадами, инсталляцией, коричневой плиткой, керамогранитной плиткой, синими стенами, полом из керамогранита, накладной раковиной, бежевым полом, подвесной тумбой и многоуровневым потолком
Сервис RemontBar_ Евгений

Москва, ул. Винокурова - ремонт санузлов в квартире панельного дома
Свежая идея для дизайна: туалет среднего размера: освещение в морском стиле с плоскими фасадами, белыми фасадами, инсталляцией, коричневой плиткой, керамогранитной плиткой, синими стенами, полом из керамогранита, накладной раковиной, бежевым полом, подвесной тумбой и многоуровневым потолком - отличное фото интерьера
Сервис RemontBar_ Евгений

Москва, ул. Винокурова - ремонт санузлов в квартире панельного дома
На фото: туалет среднего размера: освещение в морском стиле с плоскими фасадами, белыми фасадами, инсталляцией, коричневой плиткой, керамогранитной плиткой, синими стенами, полом из керамогранита, накладной раковиной, бежевым полом, подвесной тумбой и многоуровневым потолком с
Сервис RemontBar_ Евгений




