
Дизайнеры интерьера
4.93
·
10 отзывов
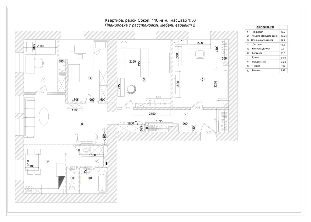
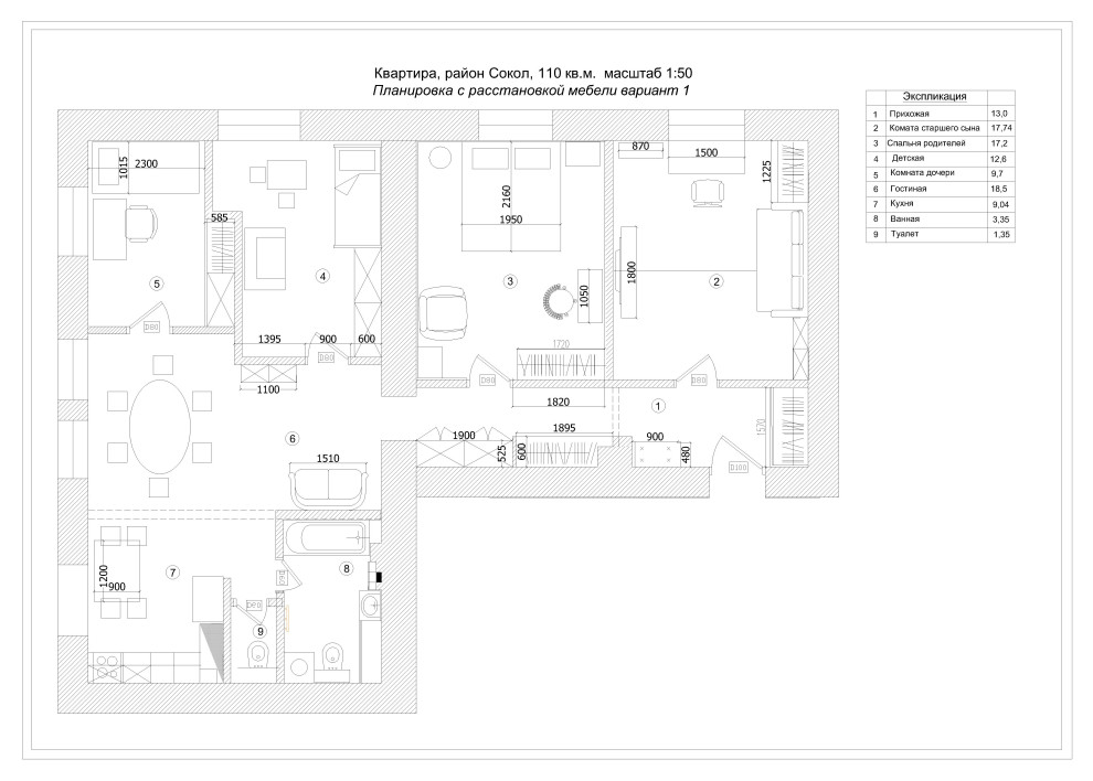
Квартира в сталинке на Соколе для большой семьи
Кухня традиционно небольшого размера в сталинских домах, поэтому использовали максимально все возможности. Навесные шкафы до потолка, под окном углубили нишу, утеплили ее и поместили туда еще шкафчики. В итоге решили и эстетические задачи, и функциональные.
Другие фотографии в проекте
343 раза сохранено в статьи и альбомы идей:
Добавил(-а) в альбом: Мои идеи пользователя Orange
Добавил(-а) в альбом: Мои идеи пользователя Алла
Добавил(-а) в альбом: Кухня классика
Вопросы к фото 1
5 л.
5 л.
Задайте вопрос
Вам ответят эксперты. Пришлем уведомление, когда вам ответят
$$, Акцентное освещение/выразительные светильники, Бежевый, Без острова, Белый, Бордюр, Искусственный кварц, Керамическая плитка, Кухня, Кухня-столовая, Маленький, Многоцветный, Москва, Нержавеющая сталь, Одностенная кухня, Римские шторы, Серый, Традиционный, Фасад со стеклом, Шкафы светлого оттенка, английская кухня, белая кухня, керамический ковер, классическая кухня, кухня в английском стиле, кухня под потолок, напольная плитка, настенная плитка плитка кабанчик, обеденный стол, плитка на полу, пэчворк, пэчворк на полу, узорчатая плитка
Похожие фотографии

ЖК Лефортово Парк
На фото: угловая кухня среднего размера в стиле неоклассика (современная классика) с обеденным столом, врезной мойкой, стеклянными фасадами, белыми фасадами, столешницей из кварцевого агломерата, белым фартуком, фартуком из керамической плитки, техникой из нержавеющей стали, полом из керамогранита, разноцветным полом и черной столешницей без острова с
Леонид Арапов

ЖК Лефортово Парк
На фото: угловая кухня среднего размера в стиле неоклассика (современная классика) с обеденным столом, врезной мойкой, стеклянными фасадами, белыми фасадами, столешницей из кварцевого агломерата, белым фартуком, фартуком из керамической плитки, техникой из нержавеющей стали, полом из керамогранита, разноцветным полом и черной столешницей без острова
Леонид Арапов

ЖК Лефортово Парк
Источник вдохновения для домашнего уюта: угловая кухня среднего размера в стиле неоклассика (современная классика) с обеденным столом, врезной мойкой, стеклянными фасадами, белыми фасадами, столешницей из кварцевого агломерата, белым фартуком, фартуком из керамической плитки, техникой из нержавеющей стали, полом из керамогранита, разноцветным полом и черной столешницей без острова
Леонид Арапов

ЖК Лефортово Парк
На фото: угловая кухня среднего размера в стиле неоклассика (современная классика) с обеденным столом, врезной мойкой, стеклянными фасадами, белыми фасадами, столешницей из кварцевого агломерата, белым фартуком, фартуком из керамической плитки, техникой из нержавеющей стали, полом из керамогранита, разноцветным полом и черной столешницей без острова с
Леонид Арапов

ЖК Лефортово Парк
Пример оригинального дизайна: угловая кухня среднего размера в стиле неоклассика (современная классика) с обеденным столом, врезной мойкой, стеклянными фасадами, белыми фасадами, столешницей из кварцевого агломерата, белым фартуком, фартуком из керамической плитки, техникой из нержавеющей стали, полом из керамогранита, разноцветным полом и черной столешницей без острова
Леонид Арапов

ЖК Лефортово Парк
Пример оригинального дизайна: угловая кухня среднего размера в стиле неоклассика (современная классика) с обеденным столом, врезной мойкой, стеклянными фасадами, белыми фасадами, столешницей из кварцевого агломерата, белым фартуком, фартуком из керамической плитки, техникой из нержавеющей стали, полом из керамогранита, разноцветным полом и черной столешницей без острова
Леонид Арапов

ЖК Лефортово Парк
Стильный дизайн: угловая кухня среднего размера в стиле неоклассика (современная классика) с обеденным столом, врезной мойкой, стеклянными фасадами, белыми фасадами, столешницей из кварцевого агломерата, белым фартуком, фартуком из керамической плитки, техникой из нержавеющей стали, полом из керамогранита, разноцветным полом и черной столешницей без острова - последний тренд
Леонид Арапов

ЖК Лефортово Парк
Пример оригинального дизайна: угловая кухня среднего размера в стиле неоклассика (современная классика) с обеденным столом, врезной мойкой, стеклянными фасадами, белыми фасадами, столешницей из кварцевого агломерата, белым фартуком, фартуком из керамической плитки, техникой из нержавеющей стали, полом из керамогранита, разноцветным полом и черной столешницей без острова
Леонид Арапов

ЖК Лефортово Парк
Источник вдохновения для домашнего уюта: угловая кухня среднего размера в стиле неоклассика (современная классика) с обеденным столом, врезной мойкой, стеклянными фасадами, белыми фасадами, столешницей из кварцевого агломерата, белым фартуком, фартуком из керамической плитки, техникой из нержавеющей стали, полом из керамогранита, разноцветным полом и черной столешницей без острова
Леонид Арапов

ЖК Лефортово Парк
На фото: угловая кухня среднего размера в стиле неоклассика (современная классика) с обеденным столом, врезной мойкой, стеклянными фасадами, белыми фасадами, столешницей из кварцевого агломерата, белым фартуком, фартуком из керамической плитки, техникой из нержавеющей стали, полом из керамогранита, разноцветным полом и черной столешницей без острова
Леонид Арапов

ЖК Лефортово Парк
Свежая идея для дизайна: угловая кухня среднего размера в стиле неоклассика (современная классика) с обеденным столом, врезной мойкой, стеклянными фасадами, белыми фасадами, столешницей из кварцевого агломерата, белым фартуком, фартуком из керамической плитки, техникой из нержавеющей стали, полом из керамогранита, разноцветным полом и черной столешницей без острова - отличное фото интерьера
Леонид Арапов

Кухня
Стильный дизайн: прямая кухня среднего размера в стиле неоклассика (современная классика) с обеденным столом, врезной мойкой, серыми фасадами, столешницей из кварцевого агломерата, бежевым фартуком, фартуком из мрамора, техникой из нержавеющей стали, полом из керамической плитки, коричневым полом, бежевой столешницей и фасадами с утопленной филенкой без острова - последний тренд
Мила Колпакова





Scrooge McDuck
5 л.
Стол и стулья