
Дизайнеры интерьера
5
·
10 отзывов
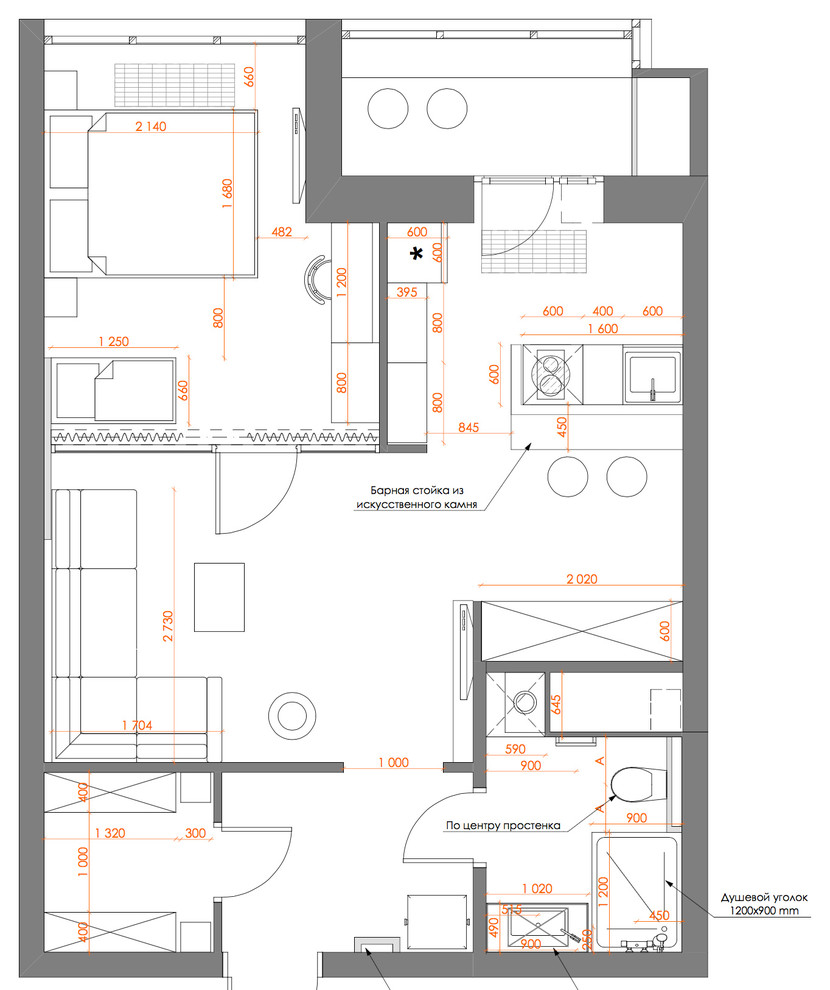
Квартира в Резиденции Сколково
Квартира создавалась для молодых родителей с одним ребёнком, в которой нужно было очень рационально использовать пространство. Кухню растворили за счёт того, что практически нет кухонных фасадов (они занимают плоскость стены кухни от пола до потолка). Общая стилистика лофта позволила использовать стеклянную перегородку на металлическом каркасе, котора с одной стороны создаёт изолированную спальню, с другой, пропускает свет и объединяет пространство квартиры. В квартире обильно использовали декоративную штукатурку под бетон.
Другие фотографии в проекте
55 раз сохранено в статьи и альбомы идей:
Добавил(-а) в альбом: Планировки
Добавил(-а) в альбом: Идеи пользователя zagar3
Добавил(-а) в альбом: Спальня
Вопросы к фото 0
Задайте вопрос
Вам ответят эксперты. Пришлем уведомление, когда вам ответят




