logo
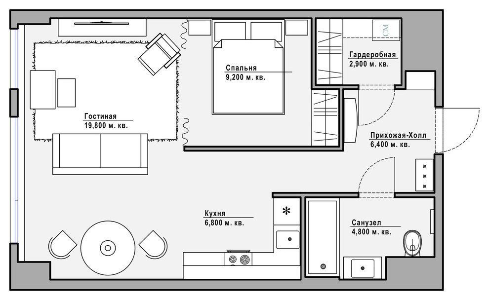
Квартира студия
Vera Tarlovskaya

Vera Tarlovskaya

Дизайнеры интерьера

5

·

3 отзыва

Другие фотографии в проекте

Вопросы к фото 0

Задайте вопрос

Вам ответят эксперты. Пришлем уведомление, когда вам ответят