
Дизайнеры интерьера
5
·
4 отзыва
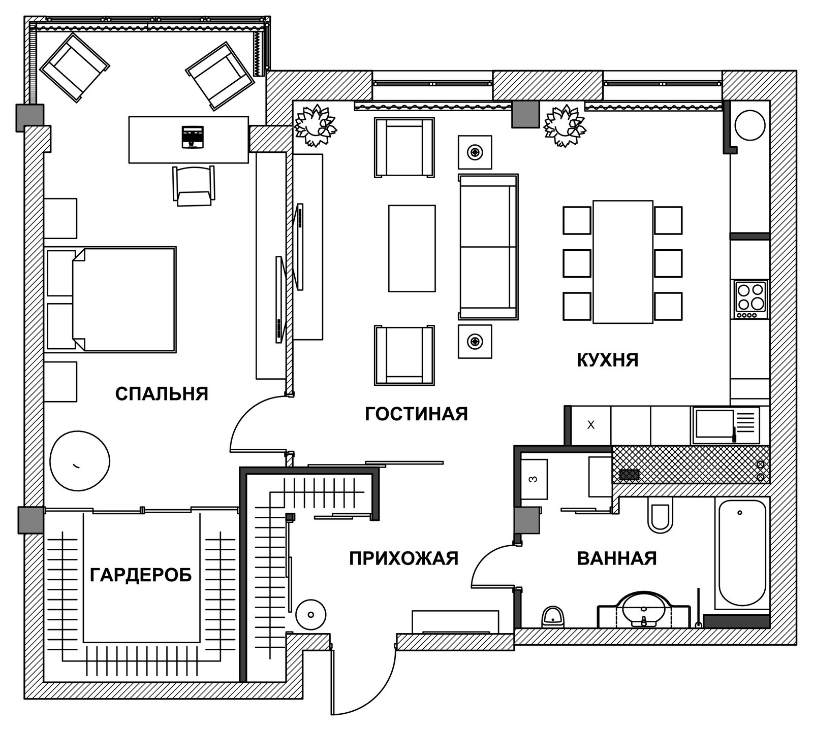
Квартира-студия в Нижнем Новгороде
Квартира для студента. . Молодежный характер этой квартиры проявляется уже в самой планировке: гостиную и кухню-столовую дизайнер объединила в одно студийное пространство, а лоджию присоединила к спальне, чтобы выделить место для рабочего кабинета.
Другие фотографии в проекте
Вопросы к фото 0
Задайте вопрос
Вам ответят эксперты. Пришлем уведомление, когда вам ответят
console, floor, Контемпорари, Нижний Новгород, Прихожая, обои, пол плитка, стены
Похожие фотографии

ЖК «Скандинавия» Квартира с интегрированной мебелью
Point Form

ВЕЛЛТОН 70
Hatka Build

Квартира с китайскими мотивами
Александра Карасева

КВАРТИРА ДЛЯ БОЛЬШОЙ СЕМЬИ НА МОСФИЛЬМОВСКОЙ
Екатерина Любимкина

HYPE MEBEL
Студия КИВИ

ЗЕЛЕНАЯ ГАВАНЬ
Студия КИВИ

Студия на мансарде для мечтательницы
Алина Жукова

Двухуровневая квартира с характером | современный дизайн интерьера
NEAPOL DESIGN | Татьяна и Дарья

Квартира на ул. Чернышевского, "Амалиенау Хаус"
Вера Кирюхина

Апартаменты в ЖК Флотилия
Апартаменты с огромной лоджией для семьи из трех человек, в новостройке, на севере Москвы, ЖК Флотилия. Основной задачей, при проектировании квартиры, было создать интерьер в современном стиле с минимумом мебели, декора. Вид из окон
Юлия Савельева

N6
Квартира для дамы элегантного возраста, которая любит готовить, принимать гостей и собирать фарфоровые статуэтки. .
Елена Никулина





